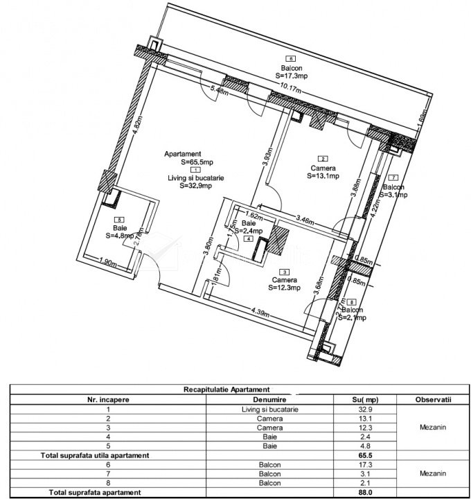
Apartment 3 rooms for sale in Cluj-napoca, zone Zorilor Cluj-Napoca, Zorilor 3 rooms • 65.5 sqm • 2 bathrooms • floor 1/14 • semidecomandatnecesita renovare • nemobilat sale price negotiable €196,300 + 7 + 4 Characteristics Property type Apartment Rooms number 3 Kitchens number 1 Bathrooms number 2 Balconier number 1 Terraces No. 1 Parking no Build area 88 m2 Ussefull area 65.5 sqm Divided Semidecomandat Comfort 1 Floor 1/14 Build with Concrete Build year 2025 Apartment Description We offer for sale a modern apartment located in the Wings residential complex, Zorilor neighborhood, Cluj-Napoca. The project is one of the most appreciated in the city, noted for its special architectural design, high-quality materials and comfort offered to residents 3-room apartment 65.5 sqm useful, 1 bedroom + niche or office, 2 bathrooms, living room and open space kitchen. Terrace 22 sqm, SEMI-FINISHED, South-East orientation Total apartment price 196,300 euros Registered with land registry – available immediately, mortgage loan can be accessed Possibility of purchasing a parking space: 15,000 EUR Property ID - P51919 Utilities, Finishings General utilities: Electricity, Water, Drain, TV CableHeating system Heating, Floor Heating Views number: 224 Updated: 2025-11-21 18:04:04
Cluj-Napoca, Zorilor 3 rooms • 65.5 sqm • 2 bathrooms • floor 1/14 • semidecomandatnecesita renovare • nemobilat
+ 7 + 4 Characteristics Property type Apartment Rooms number 3 Kitchens number 1 Bathrooms number 2 Balconier number 1 Terraces No. 1 Parking no Build area 88 m2 Ussefull area 65.5 sqm Divided Semidecomandat Comfort 1 Floor 1/14 Build with Concrete Build year 2025 Apartment Description We offer for sale a modern apartment located in the Wings residential complex, Zorilor neighborhood, Cluj-Napoca. The project is one of the most appreciated in the city, noted for its special architectural design, high-quality materials and comfort offered to residents 3-room apartment 65.5 sqm useful, 1 bedroom + niche or office, 2 bathrooms, living room and open space kitchen. Terrace 22 sqm, SEMI-FINISHED, South-East orientation Total apartment price 196,300 euros Registered with land registry – available immediately, mortgage loan can be accessed Possibility of purchasing a parking space: 15,000 EUR Property ID - P51919 Utilities, Finishings General utilities: Electricity, Water, Drain, TV CableHeating system Heating, Floor Heating Views number: 224 Updated: 2025-11-21 18:04:04
Characteristics Property type Apartment Rooms number 3 Kitchens number 1 Bathrooms number 2 Balconier number 1 Terraces No. 1 Parking no Build area 88 m2 Ussefull area 65.5 sqm Divided Semidecomandat Comfort 1 Floor 1/14 Build with Concrete Build year 2025 Apartment Description We offer for sale a modern apartment located in the Wings residential complex, Zorilor neighborhood, Cluj-Napoca. The project is one of the most appreciated in the city, noted for its special architectural design, high-quality materials and comfort offered to residents 3-room apartment 65.5 sqm useful, 1 bedroom + niche or office, 2 bathrooms, living room and open space kitchen. Terrace 22 sqm, SEMI-FINISHED, South-East orientation Total apartment price 196,300 euros Registered with land registry – available immediately, mortgage loan can be accessed Possibility of purchasing a parking space: 15,000 EUR Property ID - P51919 Utilities, Finishings General utilities: Electricity, Water, Drain, TV CableHeating system Heating, Floor Heating Views number: 224 Updated: 2025-11-21 18:04:04