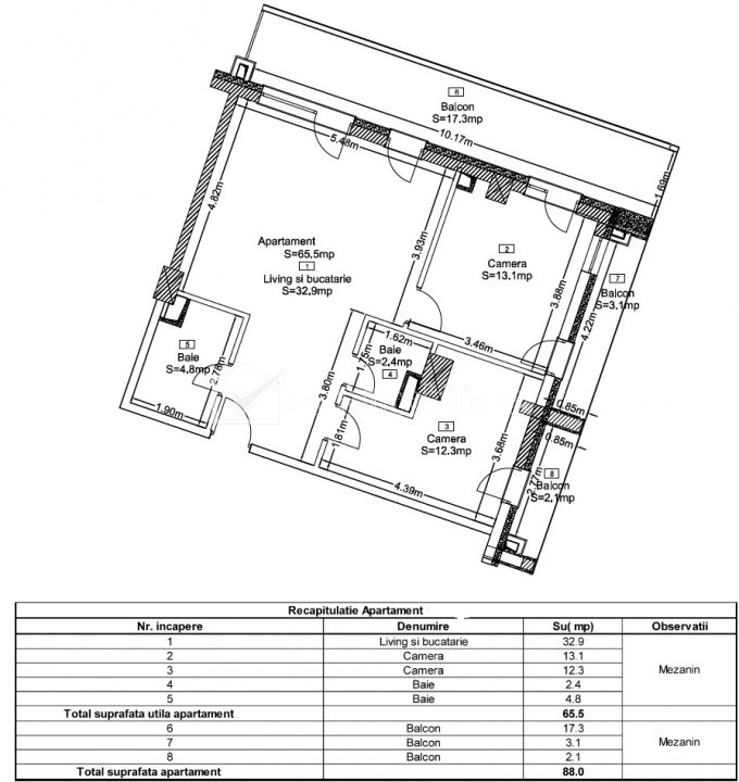
Lakás 3 szobák eladó on Cluj-napoca, Zóna Zorilor Cluj-Napoca, Zorilor 3 szobák • 65.5 m2 • 2 Fürdők száma • emelet 1/14 • semidecomandatnecesita renovare • nemobilat eladási ár alkudható 196 300 € + 7 + 4 Jellemzők Ingatlan típusa Lakás Szobák száma 3 Konyhák száma 1 Fürdők száma 2 Erkélyek száma 1 Teraszok száma 1 Parkoló nem Beépített terület 88 m2 Hasznos terület 65.5 m2 Beosztás Semidecomandat Komfort 1 Emelet 1/14 ...épített Beton Építési év 2025 Az apartman leírása Eladásra kínálunk egy modern lakást a kolozsvári Zorilor negyedben, a Wings lakóparkban. A projekt a város egyik legelismertebbje, különleges építészeti kialakításáról, kiváló minőségű anyagairól és a lakóknak kínált kényelemről ismert. 3 szobás, 65,5 nm hasznos alapterületű lakás, 1 hálószoba + fülke vagy iroda, 2 fürdőszoba, nappali és nyitott konyha. 22 nm terasz, FÉLIG KÉSZ, délkeleti fekvésű A lakás teljes ára 196 300 euró Ingatlan-nyilvántartásba bejegyezve – azonnal költözhető, jelzáloghitel igényelhető Parkolóhely vásárlásának lehetősége: 15 000 euró Ingatlan azonosítója - P51919 Közművek, Belső kialakítás Általános közművek: Villanyáram, Víz, Csatornázás, Kábel TVFűtésrendszer Hőközpont, Padlófűtés Megtekintések száma: 227 Frissítve: 2025-11-21 18:04:04
Cluj-Napoca, Zorilor 3 szobák • 65.5 m2 • 2 Fürdők száma • emelet 1/14 • semidecomandatnecesita renovare • nemobilat
+ 7 + 4 Jellemzők Ingatlan típusa Lakás Szobák száma 3 Konyhák száma 1 Fürdők száma 2 Erkélyek száma 1 Teraszok száma 1 Parkoló nem Beépített terület 88 m2 Hasznos terület 65.5 m2 Beosztás Semidecomandat Komfort 1 Emelet 1/14 ...épített Beton Építési év 2025 Az apartman leírása Eladásra kínálunk egy modern lakást a kolozsvári Zorilor negyedben, a Wings lakóparkban. A projekt a város egyik legelismertebbje, különleges építészeti kialakításáról, kiváló minőségű anyagairól és a lakóknak kínált kényelemről ismert. 3 szobás, 65,5 nm hasznos alapterületű lakás, 1 hálószoba + fülke vagy iroda, 2 fürdőszoba, nappali és nyitott konyha. 22 nm terasz, FÉLIG KÉSZ, délkeleti fekvésű A lakás teljes ára 196 300 euró Ingatlan-nyilvántartásba bejegyezve – azonnal költözhető, jelzáloghitel igényelhető Parkolóhely vásárlásának lehetősége: 15 000 euró Ingatlan azonosítója - P51919 Közművek, Belső kialakítás Általános közművek: Villanyáram, Víz, Csatornázás, Kábel TVFűtésrendszer Hőközpont, Padlófűtés Megtekintések száma: 227 Frissítve: 2025-11-21 18:04:04
Jellemzők Ingatlan típusa Lakás Szobák száma 3 Konyhák száma 1 Fürdők száma 2 Erkélyek száma 1 Teraszok száma 1 Parkoló nem Beépített terület 88 m2 Hasznos terület 65.5 m2 Beosztás Semidecomandat Komfort 1 Emelet 1/14 ...épített Beton Építési év 2025 Az apartman leírása Eladásra kínálunk egy modern lakást a kolozsvári Zorilor negyedben, a Wings lakóparkban. A projekt a város egyik legelismertebbje, különleges építészeti kialakításáról, kiváló minőségű anyagairól és a lakóknak kínált kényelemről ismert. 3 szobás, 65,5 nm hasznos alapterületű lakás, 1 hálószoba + fülke vagy iroda, 2 fürdőszoba, nappali és nyitott konyha. 22 nm terasz, FÉLIG KÉSZ, délkeleti fekvésű A lakás teljes ára 196 300 euró Ingatlan-nyilvántartásba bejegyezve – azonnal költözhető, jelzáloghitel igényelhető Parkolóhely vásárlásának lehetősége: 15 000 euró Ingatlan azonosítója - P51919 Közművek, Belső kialakítás Általános közművek: Villanyáram, Víz, Csatornázás, Kábel TVFűtésrendszer Hőközpont, Padlófűtés Megtekintések száma: 227 Frissítve: 2025-11-21 18:04:04