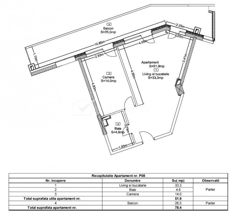
Apartament 2cam 52mp, parter, semifinisat, bloc WINGS Cluj-Napoca, Zorilor 2 camere • 52 m2 • 1 baie • etaj parter/14 • semidecomandatnemobilat pret vanzare negociabil 153.000 € + 4 Caracteristici Tip locuinta Apartament Tip imobil bloc de apartamente Numar camere 2 Numar bucatarii 1 Numar bai 1 Numar balcoane 1 Numar terase 1 Parcare nu Supr. construita 88 m2 Suprafata utila 52 m2 Compartimentare Semidecomandat Confort 1 Etaj parter/14 Construit cu Beton An constructie 2025 Disponibilitate imediat Descrierea Apartamentului Oferim spre vânzare un apartament modern situat în ansamblul rezidențial Wings, cartier Zorilor, Cluj-Napoca. Apartament 2 camere 52mp, living si bucatarie open space, dormitor cu iesire pe terasa, baie spațioasă, centrală pe gaz și încălzire în pardoseala, terasă, orientare Est. . SEMIFINISAT Intabulat cu carte funciară – disponibil imediat, se poate accesa credit ipotecar Posibilitate achiziție loc de parcare: 12.000 EUR ID Proprietate - P53252 Utilitati, Finisaje Utilitati generale: Electricitate, Apa, Gaz, Canalizare, Cablu TVSistem de incalzire Centrala de imobil, Incalzire in pardoseala Finisaje: Izolatii termice (Bloc izolat termic), Rulouri/Obloane (PVC), Usa intrare (Metal) Dotari: Alte spatii utile (Terasa), Contorizare (Apometre), Mobilat (Nemobilat), Dotari imobil (Videointerfon, Lift, Gradina), Diverse (Sistem de alarma) Vecinatati si puncte de interes in zona WINGS Frunzisului, Lidl Amenajare strazi (Asfaltate), Iluminat stradal, Mijloace de transport in comun Numar vizualizari: 416 Actualizat: 2026-02-20 15:56:41
+ 4 Caracteristici Tip locuinta Apartament Tip imobil bloc de apartamente Numar camere 2 Numar bucatarii 1 Numar bai 1 Numar balcoane 1 Numar terase 1 Parcare nu Supr. construita 88 m2 Suprafata utila 52 m2 Compartimentare Semidecomandat Confort 1 Etaj parter/14 Construit cu Beton An constructie 2025 Disponibilitate imediat Descrierea Apartamentului Oferim spre vânzare un apartament modern situat în ansamblul rezidențial Wings, cartier Zorilor, Cluj-Napoca. Apartament 2 camere 52mp, living si bucatarie open space, dormitor cu iesire pe terasa, baie spațioasă, centrală pe gaz și încălzire în pardoseala, terasă, orientare Est. . SEMIFINISAT Intabulat cu carte funciară – disponibil imediat, se poate accesa credit ipotecar Posibilitate achiziție loc de parcare: 12.000 EUR ID Proprietate - P53252 Utilitati, Finisaje Utilitati generale: Electricitate, Apa, Gaz, Canalizare, Cablu TVSistem de incalzire Centrala de imobil, Incalzire in pardoseala Finisaje: Izolatii termice (Bloc izolat termic), Rulouri/Obloane (PVC), Usa intrare (Metal) Dotari: Alte spatii utile (Terasa), Contorizare (Apometre), Mobilat (Nemobilat), Dotari imobil (Videointerfon, Lift, Gradina), Diverse (Sistem de alarma) Vecinatati si puncte de interes in zona WINGS Frunzisului, Lidl Amenajare strazi (Asfaltate), Iluminat stradal, Mijloace de transport in comun Numar vizualizari: 416 Actualizat: 2026-02-20 15:56:41
Caracteristici Tip locuinta Apartament Tip imobil bloc de apartamente Numar camere 2 Numar bucatarii 1 Numar bai 1 Numar balcoane 1 Numar terase 1 Parcare nu Supr. construita 88 m2 Suprafata utila 52 m2 Compartimentare Semidecomandat Confort 1 Etaj parter/14 Construit cu Beton An constructie 2025 Disponibilitate imediat Descrierea Apartamentului Oferim spre vânzare un apartament modern situat în ansamblul rezidențial Wings, cartier Zorilor, Cluj-Napoca. Apartament 2 camere 52mp, living si bucatarie open space, dormitor cu iesire pe terasa, baie spațioasă, centrală pe gaz și încălzire în pardoseala, terasă, orientare Est. . SEMIFINISAT Intabulat cu carte funciară – disponibil imediat, se poate accesa credit ipotecar Posibilitate achiziție loc de parcare: 12.000 EUR ID Proprietate - P53252 Utilitati, Finisaje Utilitati generale: Electricitate, Apa, Gaz, Canalizare, Cablu TVSistem de incalzire Centrala de imobil, Incalzire in pardoseala Finisaje: Izolatii termice (Bloc izolat termic), Rulouri/Obloane (PVC), Usa intrare (Metal) Dotari: Alte spatii utile (Terasa), Contorizare (Apometre), Mobilat (Nemobilat), Dotari imobil (Videointerfon, Lift, Gradina), Diverse (Sistem de alarma) Vecinatati si puncte de interes in zona WINGS Frunzisului, Lidl Amenajare strazi (Asfaltate), Iluminat stradal, Mijloace de transport in comun Numar vizualizari: 416 Actualizat: 2026-02-20 15:56:41