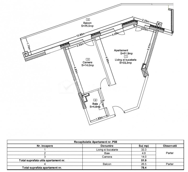
Lakás 2 szobák eladó on Cluj-napoca, Zóna Zorilor Cluj-Napoca, Zorilor 2 szobák • 52 m2 • 1 fürdőszoba • emelet földszint/14 • semidecomandatnemobilat eladási ár alkudható 153 000 € + 4 Jellemzők Ingatlan típusa Lakás Szobák száma 2 Konyhák száma 1 Fürdők száma 1 Erkélyek száma 1 Teraszok száma 1 Parkoló nem Beépített terület 88 m2 Hasznos terület 52 m2 Beosztás Semidecomandat Komfort 1 Emelet földszint/14 ...épített Beton Építési év 2025 Az apartman leírása Eladásra kínálunk egy modern lakást a Wings lakóparkban, a Zorilor negyedben, Kolozsváron. 2 szobás, 52 nm-es lakás, nyitott terű nappali és konyha, hálószoba teraszkijárattal, tágas fürdőszoba, gáz központi fűtés és padlófűtés, terasz, keleti fekvés. FÉLIG BEFEJEZETT Ingatlan-nyilvántartásba bejegyezve – azonnal költözhető, jelzáloghitel igényelhető Parkolóhely vásárlásának lehetősége: 12 000 euró Ingatlan azonosítója - P53252 Közművek, Belső kialakítás Általános közművek: Villanyáram, Víz, Gáz, Csatornázás, Kábel TVFűtésrendszer Saját hőközpont, Padlófűtés Megtekintések száma: 413 Frissítve: 2026-02-20 15:56:41
+ 4 Jellemzők Ingatlan típusa Lakás Szobák száma 2 Konyhák száma 1 Fürdők száma 1 Erkélyek száma 1 Teraszok száma 1 Parkoló nem Beépített terület 88 m2 Hasznos terület 52 m2 Beosztás Semidecomandat Komfort 1 Emelet földszint/14 ...épített Beton Építési év 2025 Az apartman leírása Eladásra kínálunk egy modern lakást a Wings lakóparkban, a Zorilor negyedben, Kolozsváron. 2 szobás, 52 nm-es lakás, nyitott terű nappali és konyha, hálószoba teraszkijárattal, tágas fürdőszoba, gáz központi fűtés és padlófűtés, terasz, keleti fekvés. FÉLIG BEFEJEZETT Ingatlan-nyilvántartásba bejegyezve – azonnal költözhető, jelzáloghitel igényelhető Parkolóhely vásárlásának lehetősége: 12 000 euró Ingatlan azonosítója - P53252 Közművek, Belső kialakítás Általános közművek: Villanyáram, Víz, Gáz, Csatornázás, Kábel TVFűtésrendszer Saját hőközpont, Padlófűtés Megtekintések száma: 413 Frissítve: 2026-02-20 15:56:41
Jellemzők Ingatlan típusa Lakás Szobák száma 2 Konyhák száma 1 Fürdők száma 1 Erkélyek száma 1 Teraszok száma 1 Parkoló nem Beépített terület 88 m2 Hasznos terület 52 m2 Beosztás Semidecomandat Komfort 1 Emelet földszint/14 ...épített Beton Építési év 2025 Az apartman leírása Eladásra kínálunk egy modern lakást a Wings lakóparkban, a Zorilor negyedben, Kolozsváron. 2 szobás, 52 nm-es lakás, nyitott terű nappali és konyha, hálószoba teraszkijárattal, tágas fürdőszoba, gáz központi fűtés és padlófűtés, terasz, keleti fekvés. FÉLIG BEFEJEZETT Ingatlan-nyilvántartásba bejegyezve – azonnal költözhető, jelzáloghitel igényelhető Parkolóhely vásárlásának lehetősége: 12 000 euró Ingatlan azonosítója - P53252 Közművek, Belső kialakítás Általános közművek: Villanyáram, Víz, Gáz, Csatornázás, Kábel TVFűtésrendszer Saját hőközpont, Padlófűtés Megtekintések száma: 413 Frissítve: 2026-02-20 15:56:41