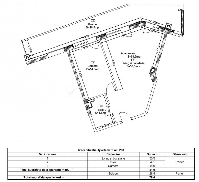
Apartament Wings, 2 cam 52mp, terasa 26.5mp, pret 157.600 eur Cluj-Napoca, Zorilor 2 camere • 52 m2 • 1 baie • etaj parter/14 • semidecomandatnemobilat pret vanzare 157.656 € + 5 Caracteristici Tip locuinta Apartament Tip imobil bloc de apartamente Numar camere 2 Numar bucatarii 1 Numar bai 1 Numar terase 1 Parcare nu Supr. construita 77 m2 Suprafata utila 52 m2 Compartimentare Semidecomandat Confort 1 Etaj parter/14 Construit cu Beton An constructie 2025 Disponibilitate imediat Descrierea Apartamentului Apartament 2 camere, 52 mp utili + terasă 26.5 mp, ansamblu Wings, Zorilor – ideal locuință sau investiție Suprafață utilă: 57 mp SEMIFINISAT, orientare SUD EST Terasa spațioasă: 26.5 mp – perfectă pentru relaxare Compartimentare eficientă: living + bucătărie open space, dormitor, baie, hol Intabulat cu carte funciară – disponibil imediat Posibilitate achiziție loc de parcare: 15.000 EUR Descriere: Oferim spre vânzare un apartament modern situat în ansamblul rezidențial Wings, cartier Zorilor, Cluj-Napoca. Proiectul este unul dintre cele mai apreciate din oraș, remarcat pentru designul arhitectural deosebit, materialele de calitate superioară și confortul oferit locatarilor. Avantaje ansamblu Wings: Arhitectură modernă, premiată Spații verzi și zone comune elegante Lifturi rapide, parcări subterane și supraterane Acces facil către centrul orașului, UMF, clinici și spitale, transport în comun Oportunitate de investiție: Datorită amplasării și calității proiectului, apartamentul este ideal atât pentru locuință proprie, cât și pentru investiție – închiriere pe termen lung sau regim hotelier (zonă cu cerere ridicată). Pentru mai multe detalii și programare vizionare, vă stau la dispoziție. ID Proprietate - P49204 Utilitati, Finisaje Utilitati generale: Electricitate, Apa, Canalizare, Cablu TVSistem de incalzire Centrala de imobil, Incalzire in pardoseala Finisaje: Izolatii termice (Bloc izolat termic), Usa intrare (Metal) Dotari: Alte spatii utile (Terasa), Mobilat (Nemobilat), Dotari imobil (Videointerfon, Lift, Gradina), Diverse (Sistem de alarma, Telecomanda poarta acces auto) Vecinatati si puncte de interes in zona WINGS Frunzisului Amenajare strazi (Asfaltate), Iluminat stradal, Mijloace de transport in comun Numar vizualizari: 994 Actualizat: 2025-11-11 18:21:44
+ 5 Caracteristici Tip locuinta Apartament Tip imobil bloc de apartamente Numar camere 2 Numar bucatarii 1 Numar bai 1 Numar terase 1 Parcare nu Supr. construita 77 m2 Suprafata utila 52 m2 Compartimentare Semidecomandat Confort 1 Etaj parter/14 Construit cu Beton An constructie 2025 Disponibilitate imediat Descrierea Apartamentului Apartament 2 camere, 52 mp utili + terasă 26.5 mp, ansamblu Wings, Zorilor – ideal locuință sau investiție Suprafață utilă: 57 mp SEMIFINISAT, orientare SUD EST Terasa spațioasă: 26.5 mp – perfectă pentru relaxare Compartimentare eficientă: living + bucătărie open space, dormitor, baie, hol Intabulat cu carte funciară – disponibil imediat Posibilitate achiziție loc de parcare: 15.000 EUR Descriere: Oferim spre vânzare un apartament modern situat în ansamblul rezidențial Wings, cartier Zorilor, Cluj-Napoca. Proiectul este unul dintre cele mai apreciate din oraș, remarcat pentru designul arhitectural deosebit, materialele de calitate superioară și confortul oferit locatarilor. Avantaje ansamblu Wings: Arhitectură modernă, premiată Spații verzi și zone comune elegante Lifturi rapide, parcări subterane și supraterane Acces facil către centrul orașului, UMF, clinici și spitale, transport în comun Oportunitate de investiție: Datorită amplasării și calității proiectului, apartamentul este ideal atât pentru locuință proprie, cât și pentru investiție – închiriere pe termen lung sau regim hotelier (zonă cu cerere ridicată). Pentru mai multe detalii și programare vizionare, vă stau la dispoziție. ID Proprietate - P49204 Utilitati, Finisaje Utilitati generale: Electricitate, Apa, Canalizare, Cablu TVSistem de incalzire Centrala de imobil, Incalzire in pardoseala Finisaje: Izolatii termice (Bloc izolat termic), Usa intrare (Metal) Dotari: Alte spatii utile (Terasa), Mobilat (Nemobilat), Dotari imobil (Videointerfon, Lift, Gradina), Diverse (Sistem de alarma, Telecomanda poarta acces auto) Vecinatati si puncte de interes in zona WINGS Frunzisului Amenajare strazi (Asfaltate), Iluminat stradal, Mijloace de transport in comun Numar vizualizari: 994 Actualizat: 2025-11-11 18:21:44
Caracteristici Tip locuinta Apartament Tip imobil bloc de apartamente Numar camere 2 Numar bucatarii 1 Numar bai 1 Numar terase 1 Parcare nu Supr. construita 77 m2 Suprafata utila 52 m2 Compartimentare Semidecomandat Confort 1 Etaj parter/14 Construit cu Beton An constructie 2025 Disponibilitate imediat Descrierea Apartamentului Apartament 2 camere, 52 mp utili + terasă 26.5 mp, ansamblu Wings, Zorilor – ideal locuință sau investiție Suprafață utilă: 57 mp SEMIFINISAT, orientare SUD EST Terasa spațioasă: 26.5 mp – perfectă pentru relaxare Compartimentare eficientă: living + bucătărie open space, dormitor, baie, hol Intabulat cu carte funciară – disponibil imediat Posibilitate achiziție loc de parcare: 15.000 EUR Descriere: Oferim spre vânzare un apartament modern situat în ansamblul rezidențial Wings, cartier Zorilor, Cluj-Napoca. Proiectul este unul dintre cele mai apreciate din oraș, remarcat pentru designul arhitectural deosebit, materialele de calitate superioară și confortul oferit locatarilor. Avantaje ansamblu Wings: Arhitectură modernă, premiată Spații verzi și zone comune elegante Lifturi rapide, parcări subterane și supraterane Acces facil către centrul orașului, UMF, clinici și spitale, transport în comun Oportunitate de investiție: Datorită amplasării și calității proiectului, apartamentul este ideal atât pentru locuință proprie, cât și pentru investiție – închiriere pe termen lung sau regim hotelier (zonă cu cerere ridicată). Pentru mai multe detalii și programare vizionare, vă stau la dispoziție. ID Proprietate - P49204 Utilitati, Finisaje Utilitati generale: Electricitate, Apa, Canalizare, Cablu TVSistem de incalzire Centrala de imobil, Incalzire in pardoseala Finisaje: Izolatii termice (Bloc izolat termic), Usa intrare (Metal) Dotari: Alte spatii utile (Terasa), Mobilat (Nemobilat), Dotari imobil (Videointerfon, Lift, Gradina), Diverse (Sistem de alarma, Telecomanda poarta acces auto) Vecinatati si puncte de interes in zona WINGS Frunzisului Amenajare strazi (Asfaltate), Iluminat stradal, Mijloace de transport in comun Numar vizualizari: 994 Actualizat: 2025-11-11 18:21:44