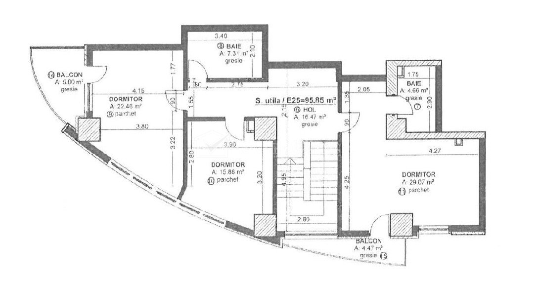
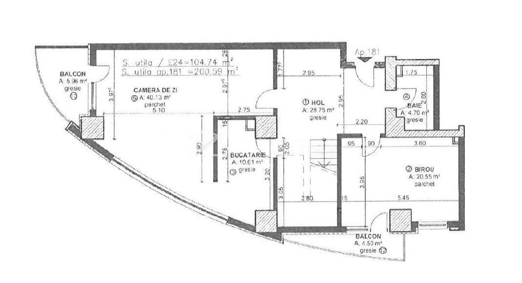
Penthouse semifinisat pe doua niveluri, 200mp, zona Calea Floresti Cluj-Napoca, Manastur 5 camere • 200.59 m2 • 3 bai • etaj ultimele 2 nivele/25 • semidecomandatnemobilat pret vanzare negociabil 620.000 € + 1 Caracteristici Tip locuinta Penthouse Tip imobil bloc de apartamente Numar camere 5 Numar bucatarii 1 Numar bai 3 Numar balcoane 4 Parcare nu Supr. construita 261 m2 Suprafata utila 200.59 m2 Compartimentare Semidecomandat Etaj ultimele 2 nivele/25 Construit cu Caramida An constructie 2023 Disponibilitate imediat Descrierea Apartamentului Welt Imobiliare va prezinta spre vanzare un penthouse semifinisat in cartierul Manastur, zona Calea Floresti. Imobilul este cu scara interioara la etajul 24, respectiv etajul 25, al unui imobil nou, dispus pe 25 etaje, avand o suprafata utila de 201 m² + 4 balcoane de 20m². Compartimentarea a fost gandita astfel: * Primul nivel - 1 living tip open space cu bucatarie si iesire la balcon - 1 dormitor cu iesire la balcon - 1 baie - hol * Al doilea nivel - 3 dormitoare cu iesire la balcon - 2 bai - 2 balcone - hol Apartamentul este bineintretinut cu supraveghere video, lift si se vinde la stadiul semifinisat. Exista posibilitatea achizitionarii unui loc de parcare subteran. Contactati-ne pentru informatii suplimentare sau pentru a stabili o vizionare! ID Proprietate - P41760 Utilitati, Finisaje Utilitati generale: Electricitate, Gaz, Canalizare Finisaje: Usa intrare (Metal) Dotari: Bucatarie (Utilata), Mobilat (Nemobilat), Dotari imobil (Interfon, Videointerfon, Lift) Vecinatati si puncte de interes in zona Amenajare strazi (Asfaltate), Iluminat stradal, Mijloace de transport in comun Numar vizualizari: 68 Actualizat: 2026-03-14 12:31:00
Cluj-Napoca, Manastur 5 camere • 200.59 m2 • 3 bai • etaj ultimele 2 nivele/25 • semidecomandatnemobilat
+ 1 Caracteristici Tip locuinta Penthouse Tip imobil bloc de apartamente Numar camere 5 Numar bucatarii 1 Numar bai 3 Numar balcoane 4 Parcare nu Supr. construita 261 m2 Suprafata utila 200.59 m2 Compartimentare Semidecomandat Etaj ultimele 2 nivele/25 Construit cu Caramida An constructie 2023 Disponibilitate imediat Descrierea Apartamentului Welt Imobiliare va prezinta spre vanzare un penthouse semifinisat in cartierul Manastur, zona Calea Floresti. Imobilul este cu scara interioara la etajul 24, respectiv etajul 25, al unui imobil nou, dispus pe 25 etaje, avand o suprafata utila de 201 m² + 4 balcoane de 20m². Compartimentarea a fost gandita astfel: * Primul nivel - 1 living tip open space cu bucatarie si iesire la balcon - 1 dormitor cu iesire la balcon - 1 baie - hol * Al doilea nivel - 3 dormitoare cu iesire la balcon - 2 bai - 2 balcone - hol Apartamentul este bineintretinut cu supraveghere video, lift si se vinde la stadiul semifinisat. Exista posibilitatea achizitionarii unui loc de parcare subteran. Contactati-ne pentru informatii suplimentare sau pentru a stabili o vizionare! ID Proprietate - P41760 Utilitati, Finisaje Utilitati generale: Electricitate, Gaz, Canalizare Finisaje: Usa intrare (Metal) Dotari: Bucatarie (Utilata), Mobilat (Nemobilat), Dotari imobil (Interfon, Videointerfon, Lift) Vecinatati si puncte de interes in zona Amenajare strazi (Asfaltate), Iluminat stradal, Mijloace de transport in comun Numar vizualizari: 68 Actualizat: 2026-03-14 12:31:00
Caracteristici Tip locuinta Penthouse Tip imobil bloc de apartamente Numar camere 5 Numar bucatarii 1 Numar bai 3 Numar balcoane 4 Parcare nu Supr. construita 261 m2 Suprafata utila 200.59 m2 Compartimentare Semidecomandat Etaj ultimele 2 nivele/25 Construit cu Caramida An constructie 2023 Disponibilitate imediat Descrierea Apartamentului Welt Imobiliare va prezinta spre vanzare un penthouse semifinisat in cartierul Manastur, zona Calea Floresti. Imobilul este cu scara interioara la etajul 24, respectiv etajul 25, al unui imobil nou, dispus pe 25 etaje, avand o suprafata utila de 201 m² + 4 balcoane de 20m². Compartimentarea a fost gandita astfel: * Primul nivel - 1 living tip open space cu bucatarie si iesire la balcon - 1 dormitor cu iesire la balcon - 1 baie - hol * Al doilea nivel - 3 dormitoare cu iesire la balcon - 2 bai - 2 balcone - hol Apartamentul este bineintretinut cu supraveghere video, lift si se vinde la stadiul semifinisat. Exista posibilitatea achizitionarii unui loc de parcare subteran. Contactati-ne pentru informatii suplimentare sau pentru a stabili o vizionare! ID Proprietate - P41760 Utilitati, Finisaje Utilitati generale: Electricitate, Gaz, Canalizare Finisaje: Usa intrare (Metal) Dotari: Bucatarie (Utilata), Mobilat (Nemobilat), Dotari imobil (Interfon, Videointerfon, Lift) Vecinatati si puncte de interes in zona Amenajare strazi (Asfaltate), Iluminat stradal, Mijloace de transport in comun Numar vizualizari: 68 Actualizat: 2026-03-14 12:31:00