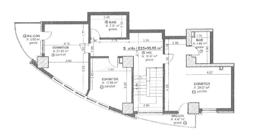
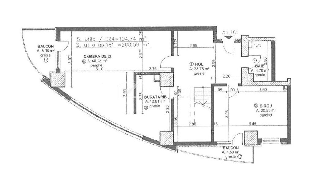
Lakás 5 szobák eladó on Cluj-napoca, Zóna Manastur Cluj-Napoca, Manastur 5 szobák • 200.59 m2 • 3 Fürdők száma • emelet utolsó 2 szint/25 • semidecomandatnemobilat eladási ár alkudható 620 000 € + 1 Jellemzők Ingatlan típusa Penthouse Szobák száma 5 Konyhák száma 1 Fürdők száma 3 Erkélyek száma 4 Parkoló nem Beépített terület 261 m2 Hasznos terület 200.59 m2 Beosztás Semidecomandat Emelet utolsó 2 szint/25 ...épített Tégla Építési év 2023 Az apartman leírása A Welt Imobiliare félig kész penthouse lakást kínál eladásra a Manastur negyedben, Calea Floresti-ben. A belső lépcsővel rendelkező épület egy új épület 24., illetve 25. emeletén található, 25 emeletes, 201 m² hasznos alapterülettel + 4 db 20 m²-es erkéllyel. A válaszfalak a következőképpen lettek kialakítva: * Első szint - 1 nyitott terű nappali konyhával és erkélykapcsolattal - 1 hálószoba erkélykapcsolattal - 1 fürdőszoba - előszoba * Második szint - 3 hálószoba erkélykapcsolattal - 2 fürdőszoba - 2 erkély - előszoba A lakás jól karbantartott, kamerával megfigyelt, lifttel ellátott, és félig kész állapotban eladó. Lehetőség van mélygarázsban parkolóhely vásárlására. További információért vagy megtekintés egyeztetéséhez vegye fel velünk a kapcsolatot! Ingatlan azonosítója - P41760 Közművek, Belső kialakítás Általános közművek: Villanyáram, Gáz, Csatornázás Megtekintések száma: 73 Frissítve: 2026-03-14 12:31:00
Cluj-Napoca, Manastur 5 szobák • 200.59 m2 • 3 Fürdők száma • emelet utolsó 2 szint/25 • semidecomandatnemobilat
+ 1 Jellemzők Ingatlan típusa Penthouse Szobák száma 5 Konyhák száma 1 Fürdők száma 3 Erkélyek száma 4 Parkoló nem Beépített terület 261 m2 Hasznos terület 200.59 m2 Beosztás Semidecomandat Emelet utolsó 2 szint/25 ...épített Tégla Építési év 2023 Az apartman leírása A Welt Imobiliare félig kész penthouse lakást kínál eladásra a Manastur negyedben, Calea Floresti-ben. A belső lépcsővel rendelkező épület egy új épület 24., illetve 25. emeletén található, 25 emeletes, 201 m² hasznos alapterülettel + 4 db 20 m²-es erkéllyel. A válaszfalak a következőképpen lettek kialakítva: * Első szint - 1 nyitott terű nappali konyhával és erkélykapcsolattal - 1 hálószoba erkélykapcsolattal - 1 fürdőszoba - előszoba * Második szint - 3 hálószoba erkélykapcsolattal - 2 fürdőszoba - 2 erkély - előszoba A lakás jól karbantartott, kamerával megfigyelt, lifttel ellátott, és félig kész állapotban eladó. Lehetőség van mélygarázsban parkolóhely vásárlására. További információért vagy megtekintés egyeztetéséhez vegye fel velünk a kapcsolatot! Ingatlan azonosítója - P41760 Közművek, Belső kialakítás Általános közművek: Villanyáram, Gáz, Csatornázás Megtekintések száma: 73 Frissítve: 2026-03-14 12:31:00
Jellemzők Ingatlan típusa Penthouse Szobák száma 5 Konyhák száma 1 Fürdők száma 3 Erkélyek száma 4 Parkoló nem Beépített terület 261 m2 Hasznos terület 200.59 m2 Beosztás Semidecomandat Emelet utolsó 2 szint/25 ...épített Tégla Építési év 2023 Az apartman leírása A Welt Imobiliare félig kész penthouse lakást kínál eladásra a Manastur negyedben, Calea Floresti-ben. A belső lépcsővel rendelkező épület egy új épület 24., illetve 25. emeletén található, 25 emeletes, 201 m² hasznos alapterülettel + 4 db 20 m²-es erkéllyel. A válaszfalak a következőképpen lettek kialakítva: * Első szint - 1 nyitott terű nappali konyhával és erkélykapcsolattal - 1 hálószoba erkélykapcsolattal - 1 fürdőszoba - előszoba * Második szint - 3 hálószoba erkélykapcsolattal - 2 fürdőszoba - 2 erkély - előszoba A lakás jól karbantartott, kamerával megfigyelt, lifttel ellátott, és félig kész állapotban eladó. Lehetőség van mélygarázsban parkolóhely vásárlására. További információért vagy megtekintés egyeztetéséhez vegye fel velünk a kapcsolatot! Ingatlan azonosítója - P41760 Közművek, Belső kialakítás Általános közművek: Villanyáram, Gáz, Csatornázás Megtekintések száma: 73 Frissítve: 2026-03-14 12:31:00