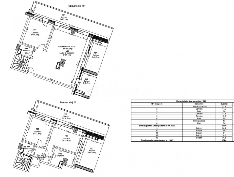
Duplex et 10+11, 3 dorm, 3 bai, Su 110mp + 64mp terase, ansamblul Wings Cluj-Napoca, Zorilor 4 camere • 110 m2 • 2 bai • etaj 10/14 • decomandatnemobilat pret vanzare negociabil 341.835 € + 10 + 7 Caracteristici Tip locuinta Apartament Tip imobil bloc de apartamente Numar camere 4 Numar bucatarii 1 Numar bai 2 Numar balcoane 2 Parcare nu Supr. construita 185 m2 Suprafata utila 110 m2 Compartimentare Decomandat Confort 1 Etaj 10/14 Construit cu Beton An constructie 2025 Disponibilitate imediat Descrierea Apartamentului Apartament tip duplex în ansamblul Wings, Zorilor:. 110 mp utili, 64mp terase, 3 dormitoare, 3 bai 2 locuri de parcare | 352.000 EUR TVA inclus Suprafață utilă: 115 mp, SEMIFINISAT, cu centrala termica pe gaz, incalzire in pardoseala, instalatii pe pozitie. Orientare Sud - Est cu panorama catre Faget, cartier Europa si str. Campului 3 terase superbe la etaj 10 si 2 terase la etaj 11 Apartament pe două niveluri (etajele 10 si 11), cu scară interioară Compartimentare: living + bucătărie open space, 3 dormitoare, 3 băi, zonă de depozitare 2 locuri de parcare incluse în preț: unul la sol, unul pe elevator (deasupra) Preț: 352.000 EUR – fără alte taxe suplimentare Spațiu ideal pentru familie sau pentru investiție (închiriere pe termen lung sau regim hotelier) Locuință intabulată cu CF, disponibilă imediat, se poate achizitiona si cu credit. ID Proprietate - P49333 Utilitati, Finisaje Utilitati generale: Electricitate, Apa, Canalizare, Cablu TVSistem de incalzire Centrala de imobil, Incalzire in pardoseala Finisaje: Izolatii termice (Bloc izolat termic), Usa intrare (Metal) Dotari: Mobilat (Nemobilat), Dotari imobil (Videointerfon, Lift, Gradina), Diverse (Sistem de alarma, Telecomanda poarta acces auto) Vecinatati si puncte de interes in zona WINGS Frunzisului Amenajare strazi (Asfaltate), Iluminat stradal, Mijloace de transport in comun Numar vizualizari: 2339 Actualizat: 2026-04-06 15:02:24
+ 10 + 7 Caracteristici Tip locuinta Apartament Tip imobil bloc de apartamente Numar camere 4 Numar bucatarii 1 Numar bai 2 Numar balcoane 2 Parcare nu Supr. construita 185 m2 Suprafata utila 110 m2 Compartimentare Decomandat Confort 1 Etaj 10/14 Construit cu Beton An constructie 2025 Disponibilitate imediat Descrierea Apartamentului Apartament tip duplex în ansamblul Wings, Zorilor:. 110 mp utili, 64mp terase, 3 dormitoare, 3 bai 2 locuri de parcare | 352.000 EUR TVA inclus Suprafață utilă: 115 mp, SEMIFINISAT, cu centrala termica pe gaz, incalzire in pardoseala, instalatii pe pozitie. Orientare Sud - Est cu panorama catre Faget, cartier Europa si str. Campului 3 terase superbe la etaj 10 si 2 terase la etaj 11 Apartament pe două niveluri (etajele 10 si 11), cu scară interioară Compartimentare: living + bucătărie open space, 3 dormitoare, 3 băi, zonă de depozitare 2 locuri de parcare incluse în preț: unul la sol, unul pe elevator (deasupra) Preț: 352.000 EUR – fără alte taxe suplimentare Spațiu ideal pentru familie sau pentru investiție (închiriere pe termen lung sau regim hotelier) Locuință intabulată cu CF, disponibilă imediat, se poate achizitiona si cu credit. ID Proprietate - P49333 Utilitati, Finisaje Utilitati generale: Electricitate, Apa, Canalizare, Cablu TVSistem de incalzire Centrala de imobil, Incalzire in pardoseala Finisaje: Izolatii termice (Bloc izolat termic), Usa intrare (Metal) Dotari: Mobilat (Nemobilat), Dotari imobil (Videointerfon, Lift, Gradina), Diverse (Sistem de alarma, Telecomanda poarta acces auto) Vecinatati si puncte de interes in zona WINGS Frunzisului Amenajare strazi (Asfaltate), Iluminat stradal, Mijloace de transport in comun Numar vizualizari: 2339 Actualizat: 2026-04-06 15:02:24
Caracteristici Tip locuinta Apartament Tip imobil bloc de apartamente Numar camere 4 Numar bucatarii 1 Numar bai 2 Numar balcoane 2 Parcare nu Supr. construita 185 m2 Suprafata utila 110 m2 Compartimentare Decomandat Confort 1 Etaj 10/14 Construit cu Beton An constructie 2025 Disponibilitate imediat Descrierea Apartamentului Apartament tip duplex în ansamblul Wings, Zorilor:. 110 mp utili, 64mp terase, 3 dormitoare, 3 bai 2 locuri de parcare | 352.000 EUR TVA inclus Suprafață utilă: 115 mp, SEMIFINISAT, cu centrala termica pe gaz, incalzire in pardoseala, instalatii pe pozitie. Orientare Sud - Est cu panorama catre Faget, cartier Europa si str. Campului 3 terase superbe la etaj 10 si 2 terase la etaj 11 Apartament pe două niveluri (etajele 10 si 11), cu scară interioară Compartimentare: living + bucătărie open space, 3 dormitoare, 3 băi, zonă de depozitare 2 locuri de parcare incluse în preț: unul la sol, unul pe elevator (deasupra) Preț: 352.000 EUR – fără alte taxe suplimentare Spațiu ideal pentru familie sau pentru investiție (închiriere pe termen lung sau regim hotelier) Locuință intabulată cu CF, disponibilă imediat, se poate achizitiona si cu credit. ID Proprietate - P49333 Utilitati, Finisaje Utilitati generale: Electricitate, Apa, Canalizare, Cablu TVSistem de incalzire Centrala de imobil, Incalzire in pardoseala Finisaje: Izolatii termice (Bloc izolat termic), Usa intrare (Metal) Dotari: Mobilat (Nemobilat), Dotari imobil (Videointerfon, Lift, Gradina), Diverse (Sistem de alarma, Telecomanda poarta acces auto) Vecinatati si puncte de interes in zona WINGS Frunzisului Amenajare strazi (Asfaltate), Iluminat stradal, Mijloace de transport in comun Numar vizualizari: 2339 Actualizat: 2026-04-06 15:02:24