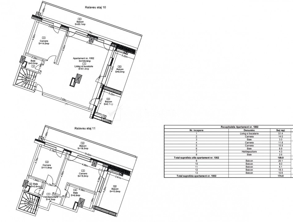
Lakás 4 szobák eladó on Cluj-napoca, Zóna Zorilor Cluj-Napoca, Zorilor 4 szobák • 110 m2 • 2 Fürdők száma • emelet 10/14 • decomandatnemobilat eladási ár alkudható 341 835 € + 10 + 7 Jellemzők Ingatlan típusa Lakás Szobák száma 4 Konyhák száma 1 Fürdők száma 2 Erkélyek száma 2 Parkoló nem Beépített terület 185 m2 Hasznos terület 110 m2 Beosztás Decomandat Komfort 1 Emelet 10/14 ...épített Beton Építési év 2025 Az apartman leírása Kétszintes lakás a Wings komplexumban, Zorilorban: 110 m² hasznos alapterület, 64 m² terasz, 3 hálószoba, 3 fürdőszoba, 2 parkolóhely | 352 000 EUR ÁFA-val együtt Hasznos alapterület: 115 m², FÉLIG KÉSZ, gáz központi fűtéssel, padlófűtéssel, a szerelvények a helyszínen vannak. Délkeleti fekvésű, kilátással a Fagetre, az Európa negyedre és a Campului utcára. 3 kiváló terasz a 10. emeleten és 2 terasz a 11. emeleten. Kétszintes (10. és 11. emelet) lakás, belső lépcsővel. Hálószoba: nappali + amerikai konyha, 3 hálószoba, 3 fürdőszoba, tárolóhelyiség. 2 parkolóhely benne van az árban: egy a földszinten, egy a liftben (fent). Ár: 352 000 EUR – nincsenek egyéb adók. Ideális hely családoknak vagy befektetésnek (hosszú távú bérbeadás vagy szállodai rezsi). A ház ingatlan-nyilvántartásba bejegyzett, azonnal költözhető, hitellel is megvásárolható. Ingatlan azonosítója - P49333 Közművek, Belső kialakítás Általános közművek: Villanyáram, Víz, Csatornázás, Kábel TVFűtésrendszer Saját hőközpont, Padlófűtés Megtekintések száma: 2160 Frissítve: 2026-02-24 09:37:27
+ 10 + 7 Jellemzők Ingatlan típusa Lakás Szobák száma 4 Konyhák száma 1 Fürdők száma 2 Erkélyek száma 2 Parkoló nem Beépített terület 185 m2 Hasznos terület 110 m2 Beosztás Decomandat Komfort 1 Emelet 10/14 ...épített Beton Építési év 2025 Az apartman leírása Kétszintes lakás a Wings komplexumban, Zorilorban: 110 m² hasznos alapterület, 64 m² terasz, 3 hálószoba, 3 fürdőszoba, 2 parkolóhely | 352 000 EUR ÁFA-val együtt Hasznos alapterület: 115 m², FÉLIG KÉSZ, gáz központi fűtéssel, padlófűtéssel, a szerelvények a helyszínen vannak. Délkeleti fekvésű, kilátással a Fagetre, az Európa negyedre és a Campului utcára. 3 kiváló terasz a 10. emeleten és 2 terasz a 11. emeleten. Kétszintes (10. és 11. emelet) lakás, belső lépcsővel. Hálószoba: nappali + amerikai konyha, 3 hálószoba, 3 fürdőszoba, tárolóhelyiség. 2 parkolóhely benne van az árban: egy a földszinten, egy a liftben (fent). Ár: 352 000 EUR – nincsenek egyéb adók. Ideális hely családoknak vagy befektetésnek (hosszú távú bérbeadás vagy szállodai rezsi). A ház ingatlan-nyilvántartásba bejegyzett, azonnal költözhető, hitellel is megvásárolható. Ingatlan azonosítója - P49333 Közművek, Belső kialakítás Általános közművek: Villanyáram, Víz, Csatornázás, Kábel TVFűtésrendszer Saját hőközpont, Padlófűtés Megtekintések száma: 2160 Frissítve: 2026-02-24 09:37:27
Jellemzők Ingatlan típusa Lakás Szobák száma 4 Konyhák száma 1 Fürdők száma 2 Erkélyek száma 2 Parkoló nem Beépített terület 185 m2 Hasznos terület 110 m2 Beosztás Decomandat Komfort 1 Emelet 10/14 ...épített Beton Építési év 2025 Az apartman leírása Kétszintes lakás a Wings komplexumban, Zorilorban: 110 m² hasznos alapterület, 64 m² terasz, 3 hálószoba, 3 fürdőszoba, 2 parkolóhely | 352 000 EUR ÁFA-val együtt Hasznos alapterület: 115 m², FÉLIG KÉSZ, gáz központi fűtéssel, padlófűtéssel, a szerelvények a helyszínen vannak. Délkeleti fekvésű, kilátással a Fagetre, az Európa negyedre és a Campului utcára. 3 kiváló terasz a 10. emeleten és 2 terasz a 11. emeleten. Kétszintes (10. és 11. emelet) lakás, belső lépcsővel. Hálószoba: nappali + amerikai konyha, 3 hálószoba, 3 fürdőszoba, tárolóhelyiség. 2 parkolóhely benne van az árban: egy a földszinten, egy a liftben (fent). Ár: 352 000 EUR – nincsenek egyéb adók. Ideális hely családoknak vagy befektetésnek (hosszú távú bérbeadás vagy szállodai rezsi). A ház ingatlan-nyilvántartásba bejegyzett, azonnal költözhető, hitellel is megvásárolható. Ingatlan azonosítója - P49333 Közművek, Belső kialakítás Általános közművek: Villanyáram, Víz, Csatornázás, Kábel TVFűtésrendszer Saját hőközpont, Padlófűtés Megtekintések száma: 2160 Frissítve: 2026-02-24 09:37:27