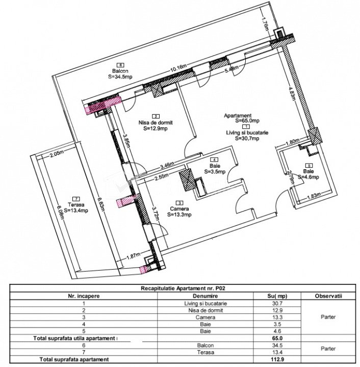
Apartament semifinisat Wings 65 mp utili + Terase 48mp Cluj-Napoca, Zorilor 3 camere • 65 m2 • 2 bai • etaj parter/14 • semidecomandatnemobilat pret vanzare negociabil 200.500 € + 10 + 7 Caracteristici Tip locuinta Apartament Tip imobil bloc de apartamente Numar camere 3 Numar bucatarii 1 Numar bai 2 Numar balcoane 1 Numar terase 1 Parcare nu Supr. construita 125 m2 Suprafata utila 65 m2 Compartimentare Semidecomandat Confort 1 Etaj parter/14 Construit cu Beton An constructie 2025 Disponibilitate imediat Descrierea Apartamentului Oferim spre vânzare un apartament modern situat în ansamblul rezidențial Wings, cartier Zorilor, Cluj-Napoca. Proiectul este unul dintre cele mai apreciate din oraș, remarcat pentru designul arhitectural deosebit, materialele de calitate superioară și confortul oferit locatarilor Apartament 3 camere 65mp utili, 1 dormitor + nisa sau birou, 2 bai, living si bucatarie open space. Terasa 13.4mp si balcon 34.5mp. SEMIFINISAT Pret total apartament 206.000 euro Intabulat cu carte funciară – disponibil imediat, se poate accesa credit ipotecar Posibilitate achiziție loc de parcare: 15.000 EUR ID Proprietate - P49107 Utilitati, Finisaje Utilitati generale: Electricitate, Apa, Canalizare, Cablu TVSistem de incalzire Centrala de imobil, Incalzire in pardoseala Finisaje: Izolatii termice (Bloc izolat termic), Rulouri/Obloane (PVC), Usa intrare (Metal) Dotari: Alte spatii utile (Terasa), Contorizare (Apometre), Mobilat (Nemobilat), Dotari imobil (Videointerfon, Lift, Gradina), Diverse (Sistem de alarma) Vecinatati si puncte de interes in zona WINGS Frunzisului Amenajare strazi (Asfaltate), Iluminat stradal, Mijloace de transport in comun Numar vizualizari: 1289 Actualizat: 2026-01-21 12:18:10
+ 10 + 7 Caracteristici Tip locuinta Apartament Tip imobil bloc de apartamente Numar camere 3 Numar bucatarii 1 Numar bai 2 Numar balcoane 1 Numar terase 1 Parcare nu Supr. construita 125 m2 Suprafata utila 65 m2 Compartimentare Semidecomandat Confort 1 Etaj parter/14 Construit cu Beton An constructie 2025 Disponibilitate imediat Descrierea Apartamentului Oferim spre vânzare un apartament modern situat în ansamblul rezidențial Wings, cartier Zorilor, Cluj-Napoca. Proiectul este unul dintre cele mai apreciate din oraș, remarcat pentru designul arhitectural deosebit, materialele de calitate superioară și confortul oferit locatarilor Apartament 3 camere 65mp utili, 1 dormitor + nisa sau birou, 2 bai, living si bucatarie open space. Terasa 13.4mp si balcon 34.5mp. SEMIFINISAT Pret total apartament 206.000 euro Intabulat cu carte funciară – disponibil imediat, se poate accesa credit ipotecar Posibilitate achiziție loc de parcare: 15.000 EUR ID Proprietate - P49107 Utilitati, Finisaje Utilitati generale: Electricitate, Apa, Canalizare, Cablu TVSistem de incalzire Centrala de imobil, Incalzire in pardoseala Finisaje: Izolatii termice (Bloc izolat termic), Rulouri/Obloane (PVC), Usa intrare (Metal) Dotari: Alte spatii utile (Terasa), Contorizare (Apometre), Mobilat (Nemobilat), Dotari imobil (Videointerfon, Lift, Gradina), Diverse (Sistem de alarma) Vecinatati si puncte de interes in zona WINGS Frunzisului Amenajare strazi (Asfaltate), Iluminat stradal, Mijloace de transport in comun Numar vizualizari: 1289 Actualizat: 2026-01-21 12:18:10
Caracteristici Tip locuinta Apartament Tip imobil bloc de apartamente Numar camere 3 Numar bucatarii 1 Numar bai 2 Numar balcoane 1 Numar terase 1 Parcare nu Supr. construita 125 m2 Suprafata utila 65 m2 Compartimentare Semidecomandat Confort 1 Etaj parter/14 Construit cu Beton An constructie 2025 Disponibilitate imediat Descrierea Apartamentului Oferim spre vânzare un apartament modern situat în ansamblul rezidențial Wings, cartier Zorilor, Cluj-Napoca. Proiectul este unul dintre cele mai apreciate din oraș, remarcat pentru designul arhitectural deosebit, materialele de calitate superioară și confortul oferit locatarilor Apartament 3 camere 65mp utili, 1 dormitor + nisa sau birou, 2 bai, living si bucatarie open space. Terasa 13.4mp si balcon 34.5mp. SEMIFINISAT Pret total apartament 206.000 euro Intabulat cu carte funciară – disponibil imediat, se poate accesa credit ipotecar Posibilitate achiziție loc de parcare: 15.000 EUR ID Proprietate - P49107 Utilitati, Finisaje Utilitati generale: Electricitate, Apa, Canalizare, Cablu TVSistem de incalzire Centrala de imobil, Incalzire in pardoseala Finisaje: Izolatii termice (Bloc izolat termic), Rulouri/Obloane (PVC), Usa intrare (Metal) Dotari: Alte spatii utile (Terasa), Contorizare (Apometre), Mobilat (Nemobilat), Dotari imobil (Videointerfon, Lift, Gradina), Diverse (Sistem de alarma) Vecinatati si puncte de interes in zona WINGS Frunzisului Amenajare strazi (Asfaltate), Iluminat stradal, Mijloace de transport in comun Numar vizualizari: 1289 Actualizat: 2026-01-21 12:18:10