Appartement 3 chambres à vendre dans Cluj-napoca, zone Zorilor Cluj-Napoca, Zorilor 3 chambres • 65 m2 • 2 salles de bains • étage rez-de-chaussée/14 • semidecomandatnemobilat prix de vente négociable 200 500 € + 10 + 7 Caractéristiques Type de bien Appartement Non. Chambres 3 Non. cuisines 1 Non. salles de bains 2 Non. balcons 1 Nombre de terrasses 1 Le stationnement non Surface construite 125 m2 Surface utile 65 m2 Compartiments Semidecomandat Confort 1 Etage rez-de-chaussée/14 Construit avec Ciment Construction 2025 Description de l'appartement Nous proposons à la vente un appartement moderne situé dans la résidence Wings, quartier Zorilor, à Cluj-Napoca. Ce projet, parmi les plus prisés de la ville, est reconnu pour son architecture soignée, ses matériaux de haute qualité et le confort offert à ses résidents. Appartement 3 pièces de 65 m² habitables, comprenant une chambre avec coin bureau, deux salles de bains, un séjour et une cuisine ouverte. Terrasse de 13,4 m² et balcon de 34,5 m². Semi-fini. Prix total de l'appartement : 206 000 euros. Inscrit au cadastre – disponible immédiatement, possibilité de financement hypothécaire. Possibilité d'acquérir une place de parking : 15 000 euros. ID de la propriété - P49107 Utilités, Finissages Utilités générales: Électricité, Eau, Evacuation des eaux usées, TV CâbleSystème chauffage Chauffage dans l’immeuble, Chauffage par le plancher Nombre de vues: 1290 Réactualiser: 2026-01-21 12:18:10
Cluj-Napoca, Zorilor 3 chambres • 65 m2 • 2 salles de bains • étage rez-de-chaussée/14 • semidecomandatnemobilat
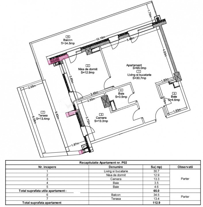
+ 10 + 7 Caractéristiques Type de bien Appartement Non. Chambres 3 Non. cuisines 1 Non. salles de bains 2 Non. balcons 1 Nombre de terrasses 1 Le stationnement non Surface construite 125 m2 Surface utile 65 m2 Compartiments Semidecomandat Confort 1 Etage rez-de-chaussée/14 Construit avec Ciment Construction 2025 Description de l'appartement Nous proposons à la vente un appartement moderne situé dans la résidence Wings, quartier Zorilor, à Cluj-Napoca. Ce projet, parmi les plus prisés de la ville, est reconnu pour son architecture soignée, ses matériaux de haute qualité et le confort offert à ses résidents. Appartement 3 pièces de 65 m² habitables, comprenant une chambre avec coin bureau, deux salles de bains, un séjour et une cuisine ouverte. Terrasse de 13,4 m² et balcon de 34,5 m². Semi-fini. Prix total de l'appartement : 206 000 euros. Inscrit au cadastre – disponible immédiatement, possibilité de financement hypothécaire. Possibilité d'acquérir une place de parking : 15 000 euros. ID de la propriété - P49107 Utilités, Finissages Utilités générales: Électricité, Eau, Evacuation des eaux usées, TV CâbleSystème chauffage Chauffage dans l’immeuble, Chauffage par le plancher Nombre de vues: 1290 Réactualiser: 2026-01-21 12:18:10
Caractéristiques Type de bien Appartement Non. Chambres 3 Non. cuisines 1 Non. salles de bains 2 Non. balcons 1 Nombre de terrasses 1 Le stationnement non Surface construite 125 m2 Surface utile 65 m2 Compartiments Semidecomandat Confort 1 Etage rez-de-chaussée/14 Construit avec Ciment Construction 2025 Description de l'appartement Nous proposons à la vente un appartement moderne situé dans la résidence Wings, quartier Zorilor, à Cluj-Napoca. Ce projet, parmi les plus prisés de la ville, est reconnu pour son architecture soignée, ses matériaux de haute qualité et le confort offert à ses résidents. Appartement 3 pièces de 65 m² habitables, comprenant une chambre avec coin bureau, deux salles de bains, un séjour et une cuisine ouverte. Terrasse de 13,4 m² et balcon de 34,5 m². Semi-fini. Prix total de l'appartement : 206 000 euros. Inscrit au cadastre – disponible immédiatement, possibilité de financement hypothécaire. Possibilité d'acquérir une place de parking : 15 000 euros. ID de la propriété - P49107 Utilités, Finissages Utilités générales: Électricité, Eau, Evacuation des eaux usées, TV CâbleSystème chauffage Chauffage dans l’immeuble, Chauffage par le plancher Nombre de vues: 1290 Réactualiser: 2026-01-21 12:18:10