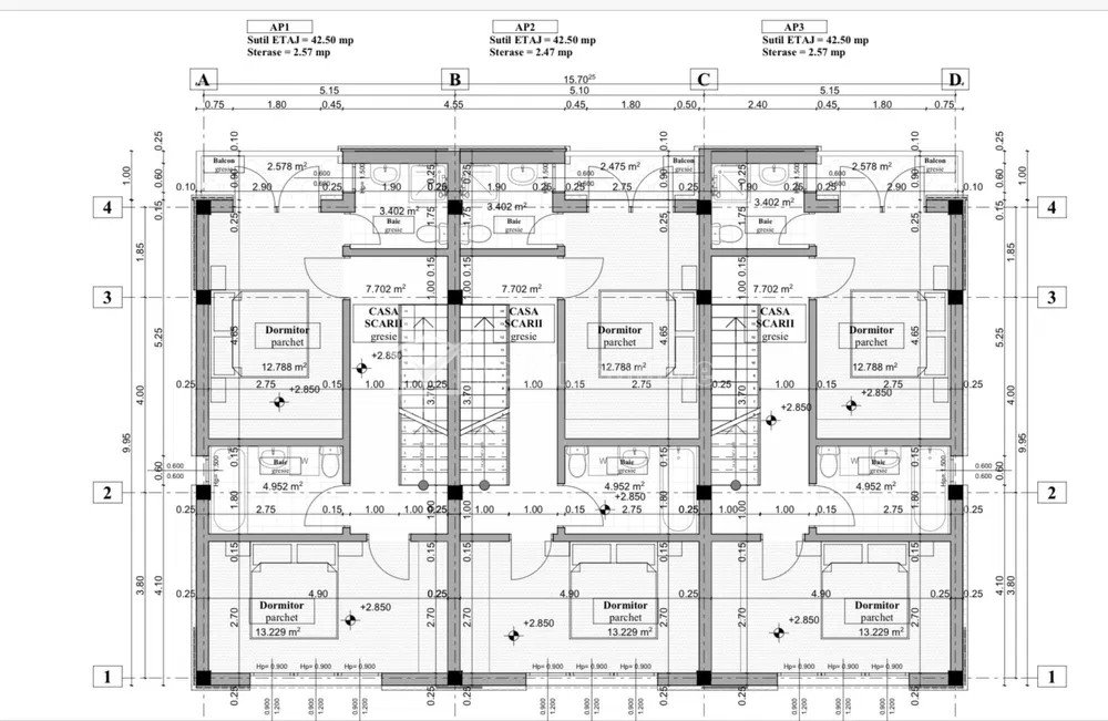
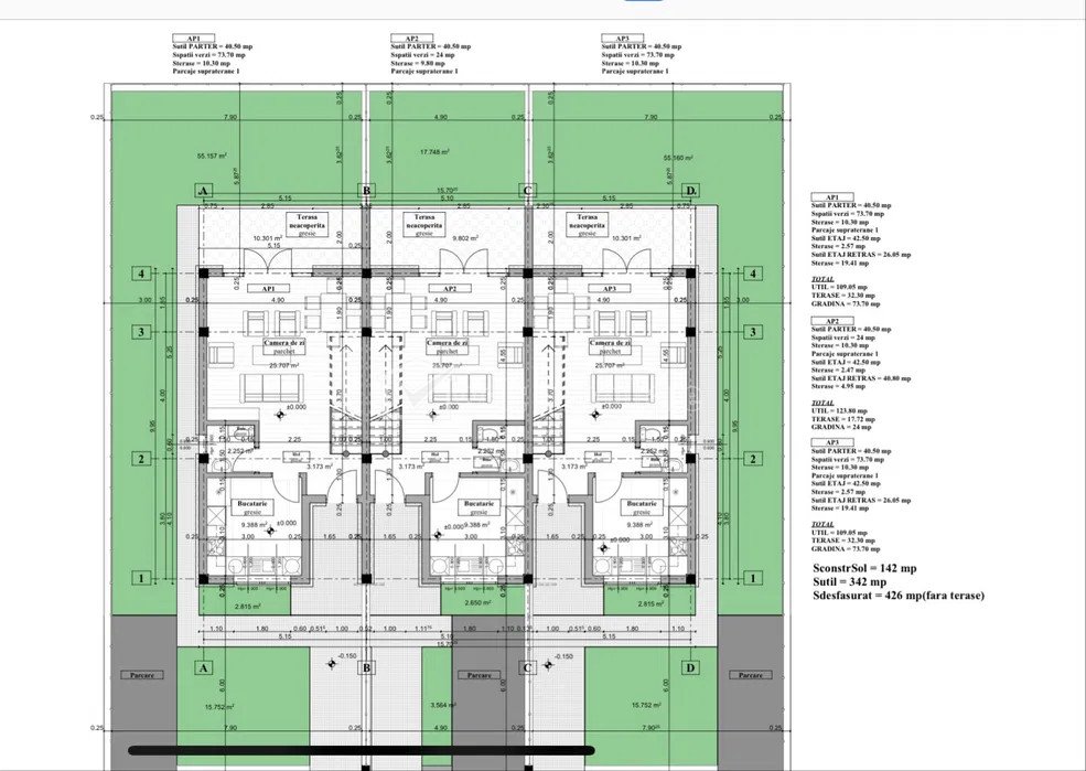
Teren cu proiect autorizat pentru 3 case insiruite in Floresti Floresti, zona Teilor teren intravilan • 509 m2 pret vanzare 124.900 € + TVA + 6 + 3 Vandut Caracteristici Tip imobil Teren intravilan Teren pentru constructii civile Suprafata 509 m2 Nr. fronturi 1 Vecinatati si puncte de interes in zona Amenajare strazi (Asfaltate) Descrierea terenului Welt Imobiliare va prezinta o oportunitate unica de investitie / dezvoltare rezidentiala Teren cu proiect autorizat pentru constructia a 3 case insiruite moderne, situat in Floresti, judetul Cluj. Proiectul permite inceperea imediata a lucrarilor, fiind ideal pentru investitori sau dezvoltatori imobiliari. Caracteristici teren si proiect: Suprafata teren: 509 mp + 124 mp cota parte drum de acces. Suprafata construita la sol: 142 mp. Suprafata desfasurata: 426 mp (fara terase). Suprafata utila totala: 342 mp. Toate utilitatile disponibile la frontul parcelei. Configuratie case insiruite: Casa 1 Suprafata utila: 109.05 mp. Terase: 32.3 mp. Gradina: 73.7 mp. Parter: 40.50 mp utili, terasa 10.30 mp, parcare supraterana. Etaj: 42.5 mp utili, terasa 2.57 mp. Etaj retras: 26.05 mp utili, terasa 19.41 mp. Casa 2 Suprafata utila: 123.8 mp. Terase: 17.72 mp. Gradina: 24 mp. Parter: 40.50 mp utili, terasa 10.30 mp, parcare supraterana. Etaj: 42.5 mp utili, terasa 2.47 mp. Etaj retras: 40.80 mp utili, terasa 4.95 mp. Casa 3 Suprafata utila: 109.05 mp. Terase: 32.3 mp. Gradina: 73.7 mp. Parter: 40.50 mp utili, terasa 10.30 mp, parcare supraterana. Etaj: 42.5 mp utili, terasa 2.57 mp. Etaj retras: 26.05 mp utili, terasa 19.41 mp. Avantaje: Zona cu potential ridicat de dezvoltare in Floresti. Proiect modern, conceput pentru eficienta si functionalitate. Posibilitate de personalizare a constructiei. Contacteaza-ne pentru mai multe detalii! ID Proprietate - P46258 Utilitati Apa, Canalizare, Gaz, Curent electric Numar vizualizari: 766 Actualizat: 2025-03-24 16:30:41
+ 6 + 3 Vandut Caracteristici Tip imobil Teren intravilan Teren pentru constructii civile Suprafata 509 m2 Nr. fronturi 1 Vecinatati si puncte de interes in zona Amenajare strazi (Asfaltate) Descrierea terenului Welt Imobiliare va prezinta o oportunitate unica de investitie / dezvoltare rezidentiala Teren cu proiect autorizat pentru constructia a 3 case insiruite moderne, situat in Floresti, judetul Cluj. Proiectul permite inceperea imediata a lucrarilor, fiind ideal pentru investitori sau dezvoltatori imobiliari. Caracteristici teren si proiect: Suprafata teren: 509 mp + 124 mp cota parte drum de acces. Suprafata construita la sol: 142 mp. Suprafata desfasurata: 426 mp (fara terase). Suprafata utila totala: 342 mp. Toate utilitatile disponibile la frontul parcelei. Configuratie case insiruite: Casa 1 Suprafata utila: 109.05 mp. Terase: 32.3 mp. Gradina: 73.7 mp. Parter: 40.50 mp utili, terasa 10.30 mp, parcare supraterana. Etaj: 42.5 mp utili, terasa 2.57 mp. Etaj retras: 26.05 mp utili, terasa 19.41 mp. Casa 2 Suprafata utila: 123.8 mp. Terase: 17.72 mp. Gradina: 24 mp. Parter: 40.50 mp utili, terasa 10.30 mp, parcare supraterana. Etaj: 42.5 mp utili, terasa 2.47 mp. Etaj retras: 40.80 mp utili, terasa 4.95 mp. Casa 3 Suprafata utila: 109.05 mp. Terase: 32.3 mp. Gradina: 73.7 mp. Parter: 40.50 mp utili, terasa 10.30 mp, parcare supraterana. Etaj: 42.5 mp utili, terasa 2.57 mp. Etaj retras: 26.05 mp utili, terasa 19.41 mp. Avantaje: Zona cu potential ridicat de dezvoltare in Floresti. Proiect modern, conceput pentru eficienta si functionalitate. Posibilitate de personalizare a constructiei. Contacteaza-ne pentru mai multe detalii! ID Proprietate - P46258 Utilitati Apa, Canalizare, Gaz, Curent electric Numar vizualizari: 766 Actualizat: 2025-03-24 16:30:41
Caracteristici Tip imobil Teren intravilan Teren pentru constructii civile Suprafata 509 m2 Nr. fronturi 1 Vecinatati si puncte de interes in zona Amenajare strazi (Asfaltate) Descrierea terenului Welt Imobiliare va prezinta o oportunitate unica de investitie / dezvoltare rezidentiala Teren cu proiect autorizat pentru constructia a 3 case insiruite moderne, situat in Floresti, judetul Cluj. Proiectul permite inceperea imediata a lucrarilor, fiind ideal pentru investitori sau dezvoltatori imobiliari. Caracteristici teren si proiect: Suprafata teren: 509 mp + 124 mp cota parte drum de acces. Suprafata construita la sol: 142 mp. Suprafata desfasurata: 426 mp (fara terase). Suprafata utila totala: 342 mp. Toate utilitatile disponibile la frontul parcelei. Configuratie case insiruite: Casa 1 Suprafata utila: 109.05 mp. Terase: 32.3 mp. Gradina: 73.7 mp. Parter: 40.50 mp utili, terasa 10.30 mp, parcare supraterana. Etaj: 42.5 mp utili, terasa 2.57 mp. Etaj retras: 26.05 mp utili, terasa 19.41 mp. Casa 2 Suprafata utila: 123.8 mp. Terase: 17.72 mp. Gradina: 24 mp. Parter: 40.50 mp utili, terasa 10.30 mp, parcare supraterana. Etaj: 42.5 mp utili, terasa 2.47 mp. Etaj retras: 40.80 mp utili, terasa 4.95 mp. Casa 3 Suprafata utila: 109.05 mp. Terase: 32.3 mp. Gradina: 73.7 mp. Parter: 40.50 mp utili, terasa 10.30 mp, parcare supraterana. Etaj: 42.5 mp utili, terasa 2.57 mp. Etaj retras: 26.05 mp utili, terasa 19.41 mp. Avantaje: Zona cu potential ridicat de dezvoltare in Floresti. Proiect modern, conceput pentru eficienta si functionalitate. Posibilitate de personalizare a constructiei. Contacteaza-ne pentru mai multe detalii! ID Proprietate - P46258 Utilitati Apa, Canalizare, Gaz, Curent electric Numar vizualizari: 766 Actualizat: 2025-03-24 16:30:41