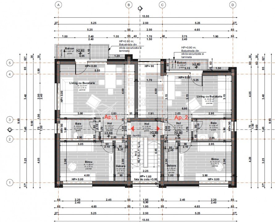
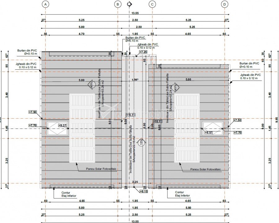
Teren 598mp cu AC imobil mixt (servicii + 2 apart) zona Kaufland Manastur Cluj-Napoca, Manastur teren intravilan • 598 m2 • front 22 m pret vanzare 385.000 € + 4 Vandut Caracteristici Tip imobil Teren intravilan Teren pentru constructii civile Suprafata 598 m2 Front 22 m Nr. fronturi 1 Latime drum acces 8 m Vecinatati si puncte de interes in zona Kaufland Manastur Amenajare strazi (Asfaltate), Iluminat stradal Descrierea terenului Teren cu Autorizatie de Construire pentru imobil mixt, zona Kaufland Manastur Suprafata teren 598mp, front 22m, toate utilitatile Constructie D+P+E+M cu suprafata utila 225mp, suprafata construita +/-280mp Demisol : 4 locuri de parcare, spatiu tehnic; Su = 117mp Parter: spatiu de servicii cu acces public; Su = 88.5mp + 12mp terase Etaj + Mansarda : 2 apartamente Apartament 1 = 44mp + mansarda 55mp Apartament 2 = 46mp + mansarda 50mp Vanzare Persoana Fizica, nu se percepe TVA. Pret usor negociabil ID Proprietate - P50555 Utilitati Apa, Canalizare, Gaz, Curent electric Numar vizualizari: 24 Actualizat: 2026-01-14 11:25:47
+ 4 Vandut Caracteristici Tip imobil Teren intravilan Teren pentru constructii civile Suprafata 598 m2 Front 22 m Nr. fronturi 1 Latime drum acces 8 m Vecinatati si puncte de interes in zona Kaufland Manastur Amenajare strazi (Asfaltate), Iluminat stradal Descrierea terenului Teren cu Autorizatie de Construire pentru imobil mixt, zona Kaufland Manastur Suprafata teren 598mp, front 22m, toate utilitatile Constructie D+P+E+M cu suprafata utila 225mp, suprafata construita +/-280mp Demisol : 4 locuri de parcare, spatiu tehnic; Su = 117mp Parter: spatiu de servicii cu acces public; Su = 88.5mp + 12mp terase Etaj + Mansarda : 2 apartamente Apartament 1 = 44mp + mansarda 55mp Apartament 2 = 46mp + mansarda 50mp Vanzare Persoana Fizica, nu se percepe TVA. Pret usor negociabil ID Proprietate - P50555 Utilitati Apa, Canalizare, Gaz, Curent electric Numar vizualizari: 24 Actualizat: 2026-01-14 11:25:47
Caracteristici Tip imobil Teren intravilan Teren pentru constructii civile Suprafata 598 m2 Front 22 m Nr. fronturi 1 Latime drum acces 8 m Vecinatati si puncte de interes in zona Kaufland Manastur Amenajare strazi (Asfaltate), Iluminat stradal Descrierea terenului Teren cu Autorizatie de Construire pentru imobil mixt, zona Kaufland Manastur Suprafata teren 598mp, front 22m, toate utilitatile Constructie D+P+E+M cu suprafata utila 225mp, suprafata construita +/-280mp Demisol : 4 locuri de parcare, spatiu tehnic; Su = 117mp Parter: spatiu de servicii cu acces public; Su = 88.5mp + 12mp terase Etaj + Mansarda : 2 apartamente Apartament 1 = 44mp + mansarda 55mp Apartament 2 = 46mp + mansarda 50mp Vanzare Persoana Fizica, nu se percepe TVA. Pret usor negociabil ID Proprietate - P50555 Utilitati Apa, Canalizare, Gaz, Curent electric Numar vizualizari: 24 Actualizat: 2026-01-14 11:25:47