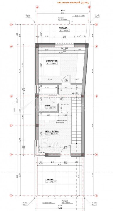
Teren cu autorizatie de casa individuala, Iris, zona Garii, Parcul Feroviarilor Cluj-Napoca, Iris teren intravilan • 250 m2 • front 9 m pret vanzare negociabil 175.000 € 145.000 € + 14 + 11 Vandut Exclusivitate Caracteristici Tip imobil Teren intravilan Teren pentru constructii civile Suprafata 250 m2 Front 9 m Vecinatati si puncte de interes in zona Parcul Feroviarilor, Piata Liebknicht, Liberty Residential Amenajare strazi (Asfaltate), Iluminat stradal, Mijloace de transport in comun Descrierea terenului Teren situat in cartierul Iris, in imediata vecinatate a Parcului Feroviarilor si a Parcului Armatura, care este cuprins intr-un amplu proiect de reabilitare, fiind in curs de edificare. Acesta cuprinde si revitalizarea malurilor Somesului, alei de acces, lucrări de reamenajare integrală a suprafeței parcului, a spațiilor verzi, sistem irigații, sistem iluminat public; mobilier urban, reconfigurare alei, suplimentare vegetație, dotari de agrement, recreere și sport, podețe pietonale precum si amenajarea malurilor raului Somes care presupune: amenajari peisagere, creare de noi alei pietonale, dotare cu mobilier urban nou, sistem de iluminat general și arhitectural cu sistem LED; un pavilion deschis, două platforme odihna si doua amfiteatre. De asemenea, in proximitate este in curs de edificare o zona comerciala, in care se vor regasi si magazinele Lidl si Kaufland. Strada pe care este amplasat terenul este infundata, avand acces doar riveranii. Imobilul are iesire la Nadas in partea din spate. Prezinta urmatoarele caracteristici: - suprafata utila autorizata a casei - 148,29 mp; - suprafata teren - 250 mp; - regim de inaltime P+E+Er. Este compartimentata astfel: - parter (58,91 mp) - hol, living impreuna cu dinning, bucatarie separata, o baie si un spatiu de depozitare aflat sub scari; - etaj (55,11 mp) - dormitor matrimonial cu dressing si baie, un dormitor si o baie; - etaj retras (37,27 mp)- un birou, un dormitor, o baie si 2 terase cu suprafata totala de 22,26 mp. ID Proprietate - P33576 Utilitati Apa, Canalizare, Gaz, Curent electric, Curent trifazic, Sistem irigatie Numar vizualizari: 2524 Actualizat: 2023-08-28 14:08:47
+ 14 + 11 Vandut Exclusivitate Caracteristici Tip imobil Teren intravilan Teren pentru constructii civile Suprafata 250 m2 Front 9 m Vecinatati si puncte de interes in zona Parcul Feroviarilor, Piata Liebknicht, Liberty Residential Amenajare strazi (Asfaltate), Iluminat stradal, Mijloace de transport in comun Descrierea terenului Teren situat in cartierul Iris, in imediata vecinatate a Parcului Feroviarilor si a Parcului Armatura, care este cuprins intr-un amplu proiect de reabilitare, fiind in curs de edificare. Acesta cuprinde si revitalizarea malurilor Somesului, alei de acces, lucrări de reamenajare integrală a suprafeței parcului, a spațiilor verzi, sistem irigații, sistem iluminat public; mobilier urban, reconfigurare alei, suplimentare vegetație, dotari de agrement, recreere și sport, podețe pietonale precum si amenajarea malurilor raului Somes care presupune: amenajari peisagere, creare de noi alei pietonale, dotare cu mobilier urban nou, sistem de iluminat general și arhitectural cu sistem LED; un pavilion deschis, două platforme odihna si doua amfiteatre. De asemenea, in proximitate este in curs de edificare o zona comerciala, in care se vor regasi si magazinele Lidl si Kaufland. Strada pe care este amplasat terenul este infundata, avand acces doar riveranii. Imobilul are iesire la Nadas in partea din spate. Prezinta urmatoarele caracteristici: - suprafata utila autorizata a casei - 148,29 mp; - suprafata teren - 250 mp; - regim de inaltime P+E+Er. Este compartimentata astfel: - parter (58,91 mp) - hol, living impreuna cu dinning, bucatarie separata, o baie si un spatiu de depozitare aflat sub scari; - etaj (55,11 mp) - dormitor matrimonial cu dressing si baie, un dormitor si o baie; - etaj retras (37,27 mp)- un birou, un dormitor, o baie si 2 terase cu suprafata totala de 22,26 mp. ID Proprietate - P33576 Utilitati Apa, Canalizare, Gaz, Curent electric, Curent trifazic, Sistem irigatie Numar vizualizari: 2524 Actualizat: 2023-08-28 14:08:47
Caracteristici Tip imobil Teren intravilan Teren pentru constructii civile Suprafata 250 m2 Front 9 m Vecinatati si puncte de interes in zona Parcul Feroviarilor, Piata Liebknicht, Liberty Residential Amenajare strazi (Asfaltate), Iluminat stradal, Mijloace de transport in comun Descrierea terenului Teren situat in cartierul Iris, in imediata vecinatate a Parcului Feroviarilor si a Parcului Armatura, care este cuprins intr-un amplu proiect de reabilitare, fiind in curs de edificare. Acesta cuprinde si revitalizarea malurilor Somesului, alei de acces, lucrări de reamenajare integrală a suprafeței parcului, a spațiilor verzi, sistem irigații, sistem iluminat public; mobilier urban, reconfigurare alei, suplimentare vegetație, dotari de agrement, recreere și sport, podețe pietonale precum si amenajarea malurilor raului Somes care presupune: amenajari peisagere, creare de noi alei pietonale, dotare cu mobilier urban nou, sistem de iluminat general și arhitectural cu sistem LED; un pavilion deschis, două platforme odihna si doua amfiteatre. De asemenea, in proximitate este in curs de edificare o zona comerciala, in care se vor regasi si magazinele Lidl si Kaufland. Strada pe care este amplasat terenul este infundata, avand acces doar riveranii. Imobilul are iesire la Nadas in partea din spate. Prezinta urmatoarele caracteristici: - suprafata utila autorizata a casei - 148,29 mp; - suprafata teren - 250 mp; - regim de inaltime P+E+Er. Este compartimentata astfel: - parter (58,91 mp) - hol, living impreuna cu dinning, bucatarie separata, o baie si un spatiu de depozitare aflat sub scari; - etaj (55,11 mp) - dormitor matrimonial cu dressing si baie, un dormitor si o baie; - etaj retras (37,27 mp)- un birou, un dormitor, o baie si 2 terase cu suprafata totala de 22,26 mp. ID Proprietate - P33576 Utilitati Apa, Canalizare, Gaz, Curent electric, Curent trifazic, Sistem irigatie Numar vizualizari: 2524 Actualizat: 2023-08-28 14:08:47