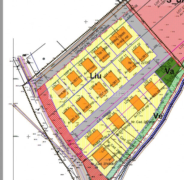
Vanzare teren, doua parcele de casa, Borhanci, 920 mp, front 34 ml, PUZ Cluj-Napoca, Borhanci teren intravilan • 920 m2 • front 34 m pret vanzare 141.000 € + 8 + 5 Vandut Exclusivitate Caracteristici Tip imobil Teren intravilan Teren pentru constructii civile Suprafata 920 m2 Front 34 m Nr. fronturi 2 Vecinatati si puncte de interes in zona zona de case Amenajare strazi (Asfaltate, Pietruite), Iluminat stradal, Mijloace de transport in comun Descrierea terenului Terenul este situat intr-o zona linistita, retrasa de la aglomeratie, dar dezvoltata cu case noi. Urbanizarea este in curs, avand in momentul de fata avizul de oportunitate aprobat de comisia tehnica. PUZ-ul este in curs de aprobare. Zona studiata presupune 17 parcele, aranjate pe 3 randuri, cu un drum de 9 m latime intre ele. Este perfect plan, iar utilitatile (apa, gaz, curent), sunt la distanta de 50 ml. Prezinta o perspectiva excelenta de viitor. Terenul se preteaza pentru 2 case individuale, fiind impartit in 2 parcele egale. ID Proprietate - P20166 Utilitati Apa, Gaz, Curent electric Numar vizualizari: 4589 Actualizat: 2023-08-28 14:08:45
+ 8 + 5 Vandut Exclusivitate Caracteristici Tip imobil Teren intravilan Teren pentru constructii civile Suprafata 920 m2 Front 34 m Nr. fronturi 2 Vecinatati si puncte de interes in zona zona de case Amenajare strazi (Asfaltate, Pietruite), Iluminat stradal, Mijloace de transport in comun Descrierea terenului Terenul este situat intr-o zona linistita, retrasa de la aglomeratie, dar dezvoltata cu case noi. Urbanizarea este in curs, avand in momentul de fata avizul de oportunitate aprobat de comisia tehnica. PUZ-ul este in curs de aprobare. Zona studiata presupune 17 parcele, aranjate pe 3 randuri, cu un drum de 9 m latime intre ele. Este perfect plan, iar utilitatile (apa, gaz, curent), sunt la distanta de 50 ml. Prezinta o perspectiva excelenta de viitor. Terenul se preteaza pentru 2 case individuale, fiind impartit in 2 parcele egale. ID Proprietate - P20166 Utilitati Apa, Gaz, Curent electric Numar vizualizari: 4589 Actualizat: 2023-08-28 14:08:45
Caracteristici Tip imobil Teren intravilan Teren pentru constructii civile Suprafata 920 m2 Front 34 m Nr. fronturi 2 Vecinatati si puncte de interes in zona zona de case Amenajare strazi (Asfaltate, Pietruite), Iluminat stradal, Mijloace de transport in comun Descrierea terenului Terenul este situat intr-o zona linistita, retrasa de la aglomeratie, dar dezvoltata cu case noi. Urbanizarea este in curs, avand in momentul de fata avizul de oportunitate aprobat de comisia tehnica. PUZ-ul este in curs de aprobare. Zona studiata presupune 17 parcele, aranjate pe 3 randuri, cu un drum de 9 m latime intre ele. Este perfect plan, iar utilitatile (apa, gaz, curent), sunt la distanta de 50 ml. Prezinta o perspectiva excelenta de viitor. Terenul se preteaza pentru 2 case individuale, fiind impartit in 2 parcele egale. ID Proprietate - P20166 Utilitati Apa, Gaz, Curent electric Numar vizualizari: 4589 Actualizat: 2023-08-28 14:08:45