Teren premium in Andrei Muresanu, 630 mp cu autorizatie imobil D+P+2E, 422 mp SU Cluj-Napoca, Andrei Muresanu teren intravilan • 630 m2 • front 25 m pret vanzare 480.000 € + 8 + 5 Vandut Caracteristici Tip imobil Teren intravilan Teren pentru constructii civile Suprafata 630 m2 Front 25 m Nr. fronturi 2 Vecinatati si puncte de interes in zona Piata Engles Amenajare strazi (Asfaltate), Iluminat stradal, Mijloace de transport in comun Descrierea terenului Terenul este situat intr-o locatie de top a orasului, in centrul cartierului Andrei Muresanu. Suprafata totala este de 630 mp si are front la 2 strazi (23m x 27m). Terenul este plan. Pe teren exista o casa demolabila (autorizatie de demloare emisa, vizata de comisia de monumente). Exista proiect in curs de autorizare pentru un imobil S+P+2E, impartit in 7 apartamente, avand suprafata utila totala de 639 mp, din care 217 mp sunt la subsol. Imobilul proiectat se preteaza atat pentru aparthotel, cat si pentru sediu de firma sau locuinta pentru 2 familii. ID Proprietate - P26457 Utilitati Apa, Canalizare, Gaz, Curent electric, Curent trifazic Numar vizualizari: 718 Actualizat: 2023-08-28 14:48:30
+ 8 + 5 Vandut Caracteristici Tip imobil Teren intravilan Teren pentru constructii civile Suprafata 630 m2 Front 25 m Nr. fronturi 2 Vecinatati si puncte de interes in zona Piata Engles Amenajare strazi (Asfaltate), Iluminat stradal, Mijloace de transport in comun Descrierea terenului Terenul este situat intr-o locatie de top a orasului, in centrul cartierului Andrei Muresanu. Suprafata totala este de 630 mp si are front la 2 strazi (23m x 27m). Terenul este plan. Pe teren exista o casa demolabila (autorizatie de demloare emisa, vizata de comisia de monumente). Exista proiect in curs de autorizare pentru un imobil S+P+2E, impartit in 7 apartamente, avand suprafata utila totala de 639 mp, din care 217 mp sunt la subsol. Imobilul proiectat se preteaza atat pentru aparthotel, cat si pentru sediu de firma sau locuinta pentru 2 familii. ID Proprietate - P26457 Utilitati Apa, Canalizare, Gaz, Curent electric, Curent trifazic Numar vizualizari: 718 Actualizat: 2023-08-28 14:48:30
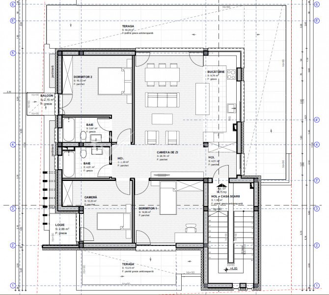
Caracteristici Tip imobil Teren intravilan Teren pentru constructii civile Suprafata 630 m2 Front 25 m Nr. fronturi 2 Vecinatati si puncte de interes in zona Piata Engles Amenajare strazi (Asfaltate), Iluminat stradal, Mijloace de transport in comun Descrierea terenului Terenul este situat intr-o locatie de top a orasului, in centrul cartierului Andrei Muresanu. Suprafata totala este de 630 mp si are front la 2 strazi (23m x 27m). Terenul este plan. Pe teren exista o casa demolabila (autorizatie de demloare emisa, vizata de comisia de monumente). Exista proiect in curs de autorizare pentru un imobil S+P+2E, impartit in 7 apartamente, avand suprafata utila totala de 639 mp, din care 217 mp sunt la subsol. Imobilul proiectat se preteaza atat pentru aparthotel, cat si pentru sediu de firma sau locuinta pentru 2 familii. ID Proprietate - P26457 Utilitati Apa, Canalizare, Gaz, Curent electric, Curent trifazic Numar vizualizari: 718 Actualizat: 2023-08-28 14:48:30