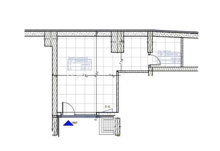
Investitie spatiu comercial parter str. Fabricii, H=4,5m Cluj-Napoca, Marasti 1 camera • 27 m2 pret vanzare 65.000 € + TVA + 2 Vandut Caracteristici Tip spatiu Spatiu Comercial Suprafata utila 27 m2 Nr. incaperi 1 Bai 1 Terase -- Nr. parcari -- Nr. garaje -- Tip imobil bloc Etaj parter Constructie din Beton Anul constructiei -- Sup. construita 35 m2 Suprafata curte -- Disponibilitate imediat Descrierea spatiului Spatiu comercial situat pe str. Fabricii imediat dupa trecerea pe sub podul de cale ferata. Parter de imobil recent construit, pozitie foarte usor accesibila. Spatiul este semifinisat, cu centrala proprie si incalzire in pardoseala, inaltime 4m50, ideal pentru a face o supanta. Potrivit pentru mici activiati proprii sau investitie pt a fi dat in chirie. ID Proprietate - P50668 Utilitati Utilitati generale: Electricitate, Apa, Canalizare, Cablu TVSistem de incalzire: Centrala termica Finisaje: Izolatii termice (Bloc izolat termic), Iluminat (Exterior cladire, Lumina naturala) Dotari: Contorizare (Nemobilat), Dotari imobil (Interfon) Vecinatati si puncte de interes in zona str Fabricii Marasti Numar vizualizari: 1091 Actualizat: 2025-11-25 15:13:21
+ 2 Vandut Caracteristici Tip spatiu Spatiu Comercial Suprafata utila 27 m2 Nr. incaperi 1 Bai 1 Terase -- Nr. parcari -- Nr. garaje -- Tip imobil bloc Etaj parter Constructie din Beton Anul constructiei -- Sup. construita 35 m2 Suprafata curte -- Disponibilitate imediat Descrierea spatiului Spatiu comercial situat pe str. Fabricii imediat dupa trecerea pe sub podul de cale ferata. Parter de imobil recent construit, pozitie foarte usor accesibila. Spatiul este semifinisat, cu centrala proprie si incalzire in pardoseala, inaltime 4m50, ideal pentru a face o supanta. Potrivit pentru mici activiati proprii sau investitie pt a fi dat in chirie. ID Proprietate - P50668 Utilitati Utilitati generale: Electricitate, Apa, Canalizare, Cablu TVSistem de incalzire: Centrala termica Finisaje: Izolatii termice (Bloc izolat termic), Iluminat (Exterior cladire, Lumina naturala) Dotari: Contorizare (Nemobilat), Dotari imobil (Interfon) Vecinatati si puncte de interes in zona str Fabricii Marasti Numar vizualizari: 1091 Actualizat: 2025-11-25 15:13:21
Caracteristici Tip spatiu Spatiu Comercial Suprafata utila 27 m2 Nr. incaperi 1 Bai 1 Terase -- Nr. parcari -- Nr. garaje -- Tip imobil bloc Etaj parter Constructie din Beton Anul constructiei -- Sup. construita 35 m2 Suprafata curte -- Disponibilitate imediat Descrierea spatiului Spatiu comercial situat pe str. Fabricii imediat dupa trecerea pe sub podul de cale ferata. Parter de imobil recent construit, pozitie foarte usor accesibila. Spatiul este semifinisat, cu centrala proprie si incalzire in pardoseala, inaltime 4m50, ideal pentru a face o supanta. Potrivit pentru mici activiati proprii sau investitie pt a fi dat in chirie. ID Proprietate - P50668 Utilitati Utilitati generale: Electricitate, Apa, Canalizare, Cablu TVSistem de incalzire: Centrala termica Finisaje: Izolatii termice (Bloc izolat termic), Iluminat (Exterior cladire, Lumina naturala) Dotari: Contorizare (Nemobilat), Dotari imobil (Interfon) Vecinatati si puncte de interes in zona str Fabricii Marasti Numar vizualizari: 1091 Actualizat: 2025-11-25 15:13:21