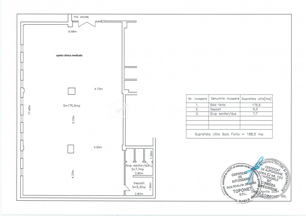
Spațiu 188mp, chirie 10 ani activitate medicala, Turzii - Leroy Merlin Cluj-Napoca, zona Calea Turzii 2 camere • 188.5 m2 pret vanzare 365.000 € + TVA Vandut Caracteristici Tip spatiu Spatiu Comercial Suprafata utila 188.5 m2 Nr. incaperi 2 Bai 4 Terase -- Nr. parcari 3 Nr. garaje 3 Tip imobil bloc Etaj parter/6 Regim de inaltime D+P+6E Constructie din Caramida Anul constructiei -- Sup. construita 215 m2 Suprafata curte -- Disponibilitate imediat Descrierea spatiului Welt Imobiliare ofera spre vanzare spatiu de servicii inchiriat cu preluare de chiriasi Suprafata 188.5mp, contract chirie pe 10 ani pentru clinica medicala, zona calea Turzii - Leroy Merlin Chiria este de 1850eur/luna + TVA, indexabil anual cu rata inflatiei si renegociere la 2 ani. Spatiul este la parterul unui imobil cu acces separat si direct de pe trotuar Se poate achizitiona si spatiul adiacent de 120mp, inchiriat la 1.000 eur, totalizand 315mp la 610.000 euro + TVA Se ofera locuri de parcare exterioara la pretul de 6.000 eur/buc si locuri de parcare subterana la 9.000 eur/buc ID Proprietate - P49520 Utilitati Utilitati generale: Electricitate, Apa, GazSistem de incalzire: Termoficare, Centrala termicaClimatizare: Aer conditionat Finisaje: Izolatii termice (Bloc izolat termic), Podele (Parchet, Gresie), Iluminat (Lampi, Spoturi, Aplice, Exterior cladire, Lumina naturala) Dotari: Contorizare (Nemobilat), Dotari imobil (Interfon) Vecinatati si puncte de interes in zona calea Turzii Leroy Merlin Numar vizualizari: 1309 Actualizat: 2025-09-18 20:42:09
Vandut Caracteristici Tip spatiu Spatiu Comercial Suprafata utila 188.5 m2 Nr. incaperi 2 Bai 4 Terase -- Nr. parcari 3 Nr. garaje 3 Tip imobil bloc Etaj parter/6 Regim de inaltime D+P+6E Constructie din Caramida Anul constructiei -- Sup. construita 215 m2 Suprafata curte -- Disponibilitate imediat Descrierea spatiului Welt Imobiliare ofera spre vanzare spatiu de servicii inchiriat cu preluare de chiriasi Suprafata 188.5mp, contract chirie pe 10 ani pentru clinica medicala, zona calea Turzii - Leroy Merlin Chiria este de 1850eur/luna + TVA, indexabil anual cu rata inflatiei si renegociere la 2 ani. Spatiul este la parterul unui imobil cu acces separat si direct de pe trotuar Se poate achizitiona si spatiul adiacent de 120mp, inchiriat la 1.000 eur, totalizand 315mp la 610.000 euro + TVA Se ofera locuri de parcare exterioara la pretul de 6.000 eur/buc si locuri de parcare subterana la 9.000 eur/buc ID Proprietate - P49520 Utilitati Utilitati generale: Electricitate, Apa, GazSistem de incalzire: Termoficare, Centrala termicaClimatizare: Aer conditionat Finisaje: Izolatii termice (Bloc izolat termic), Podele (Parchet, Gresie), Iluminat (Lampi, Spoturi, Aplice, Exterior cladire, Lumina naturala) Dotari: Contorizare (Nemobilat), Dotari imobil (Interfon) Vecinatati si puncte de interes in zona calea Turzii Leroy Merlin Numar vizualizari: 1309 Actualizat: 2025-09-18 20:42:09
Caracteristici Tip spatiu Spatiu Comercial Suprafata utila 188.5 m2 Nr. incaperi 2 Bai 4 Terase -- Nr. parcari 3 Nr. garaje 3 Tip imobil bloc Etaj parter/6 Regim de inaltime D+P+6E Constructie din Caramida Anul constructiei -- Sup. construita 215 m2 Suprafata curte -- Disponibilitate imediat Descrierea spatiului Welt Imobiliare ofera spre vanzare spatiu de servicii inchiriat cu preluare de chiriasi Suprafata 188.5mp, contract chirie pe 10 ani pentru clinica medicala, zona calea Turzii - Leroy Merlin Chiria este de 1850eur/luna + TVA, indexabil anual cu rata inflatiei si renegociere la 2 ani. Spatiul este la parterul unui imobil cu acces separat si direct de pe trotuar Se poate achizitiona si spatiul adiacent de 120mp, inchiriat la 1.000 eur, totalizand 315mp la 610.000 euro + TVA Se ofera locuri de parcare exterioara la pretul de 6.000 eur/buc si locuri de parcare subterana la 9.000 eur/buc ID Proprietate - P49520 Utilitati Utilitati generale: Electricitate, Apa, GazSistem de incalzire: Termoficare, Centrala termicaClimatizare: Aer conditionat Finisaje: Izolatii termice (Bloc izolat termic), Podele (Parchet, Gresie), Iluminat (Lampi, Spoturi, Aplice, Exterior cladire, Lumina naturala) Dotari: Contorizare (Nemobilat), Dotari imobil (Interfon) Vecinatati si puncte de interes in zona calea Turzii Leroy Merlin Numar vizualizari: 1309 Actualizat: 2025-09-18 20:42:09