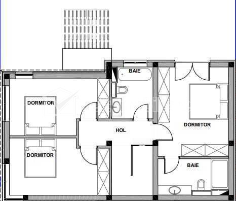
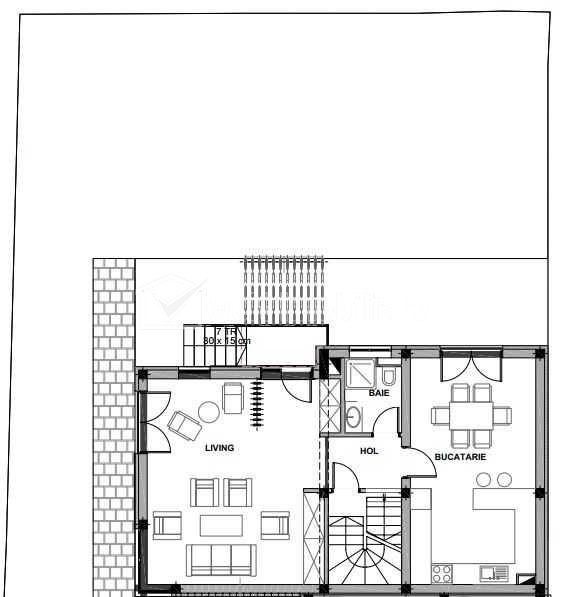
Duplex 190 mp, cartier Dambul Rotund, gradina proprie Cluj-Napoca, zona Dambul-Rotund 6 camere • 189.12 m2 • 534 m2 terennemobilat pret vanzare negociabil 375.000 € 365.000 € + 16 + 13 Vandut Caracteristici Tip locuinta Casa Tip imobil Duplex Numar camere 6 Numar bucatarii 1 Numar bai 4 Parcare da Beci nu Gradina da Suprafata utila 189.12 m2 Suprafata construita 240 m2 Suprafata teren 534 m2 Etaj 1 Struct. rezistenta Caramida An constructie 2022 Disponibilitate imediat Descrierea Casei Acest duplex este situat in Dambul Rotund, intr-o zona aerisita, de case, accesibila, dar retrasa de la traficul aglomerat si agitatia urbana. Acesta are urmatoarele caracteristici tehnice: - suprafata utila 190 mp; - regim de inaltime - D+P+E - suprafata teren 534 mp; - suprafata gradina 140 mp. Caracteristici: - constructie solida, fundatii de beton, zidarie din caramida, sarpanta din lemn acoperit cu tigla, centrala Viessmann Compartimentare: - demisol: hol (8,89 mp), 2 spatii tehnice (29,21 si 23,40mp), baie (4,51); total: 66,01 mp utili - parter: hol (3,29mp), living (31,93mp), bucatarie (23,76mp), baie (3,52mp); total: 62,50 mp utili - terasa: 28 mp - etaj: hol (4,77mp), dormitor matrimonial (16,33mp) cu baie proprie (6,66mp), 2 dormitoare (13,88 si 13,46mp) , baie (5,51mp); total: 60,61 mp utili Stadiu de predare interior: - sapa autonivelanta. - pereti cu glet si vopsea lavabila alba - ferestre si usi din tamplarie PVC Rehau Synego - usi interioare demisol PVC - calorifere aluminiu - instalatii sanitare la pozitie - instalatie electrica (bransament trifazat, tablouri electrice pe fiecare nivel, prize si intrerupatoare montate) - sistem alarma Stadiul de predare exterior: - izolatie exterioara si tencuiala decorativa - balustrade din sticla securizata - terase placate cu gresie - corpuri iluminat exterior - trotuare si pavaj / 2 locuri de parcare - camere supraveghere Datorita locatiei, dar si pretului avantajos, consider ca reprezinta o oportunitate foarte buna pentru locuit. Pentru a afla mai multe detalii referitoare la aceasta proprietate, contactati-ne acum! ID Proprietate - P31272 Finisaje Izolatii termice (Interior), Pereti (Vopsea lavabila), Ferestre cu geam termopan (PVC), Usa intrare (Metal) Vecinatati si puncte de interes in zona Amenajare strazi (Asfaltate), Iluminat stradal, Mijloace de transport in comun Numar vizualizari: 908 Actualizat: 2023-11-06 09:56:04
+ 16 + 13 Vandut Caracteristici Tip locuinta Casa Tip imobil Duplex Numar camere 6 Numar bucatarii 1 Numar bai 4 Parcare da Beci nu Gradina da Suprafata utila 189.12 m2 Suprafata construita 240 m2 Suprafata teren 534 m2 Etaj 1 Struct. rezistenta Caramida An constructie 2022 Disponibilitate imediat Descrierea Casei Acest duplex este situat in Dambul Rotund, intr-o zona aerisita, de case, accesibila, dar retrasa de la traficul aglomerat si agitatia urbana. Acesta are urmatoarele caracteristici tehnice: - suprafata utila 190 mp; - regim de inaltime - D+P+E - suprafata teren 534 mp; - suprafata gradina 140 mp. Caracteristici: - constructie solida, fundatii de beton, zidarie din caramida, sarpanta din lemn acoperit cu tigla, centrala Viessmann Compartimentare: - demisol: hol (8,89 mp), 2 spatii tehnice (29,21 si 23,40mp), baie (4,51); total: 66,01 mp utili - parter: hol (3,29mp), living (31,93mp), bucatarie (23,76mp), baie (3,52mp); total: 62,50 mp utili - terasa: 28 mp - etaj: hol (4,77mp), dormitor matrimonial (16,33mp) cu baie proprie (6,66mp), 2 dormitoare (13,88 si 13,46mp) , baie (5,51mp); total: 60,61 mp utili Stadiu de predare interior: - sapa autonivelanta. - pereti cu glet si vopsea lavabila alba - ferestre si usi din tamplarie PVC Rehau Synego - usi interioare demisol PVC - calorifere aluminiu - instalatii sanitare la pozitie - instalatie electrica (bransament trifazat, tablouri electrice pe fiecare nivel, prize si intrerupatoare montate) - sistem alarma Stadiul de predare exterior: - izolatie exterioara si tencuiala decorativa - balustrade din sticla securizata - terase placate cu gresie - corpuri iluminat exterior - trotuare si pavaj / 2 locuri de parcare - camere supraveghere Datorita locatiei, dar si pretului avantajos, consider ca reprezinta o oportunitate foarte buna pentru locuit. Pentru a afla mai multe detalii referitoare la aceasta proprietate, contactati-ne acum! ID Proprietate - P31272 Finisaje Izolatii termice (Interior), Pereti (Vopsea lavabila), Ferestre cu geam termopan (PVC), Usa intrare (Metal) Vecinatati si puncte de interes in zona Amenajare strazi (Asfaltate), Iluminat stradal, Mijloace de transport in comun Numar vizualizari: 908 Actualizat: 2023-11-06 09:56:04
Caracteristici Tip locuinta Casa Tip imobil Duplex Numar camere 6 Numar bucatarii 1 Numar bai 4 Parcare da Beci nu Gradina da Suprafata utila 189.12 m2 Suprafata construita 240 m2 Suprafata teren 534 m2 Etaj 1 Struct. rezistenta Caramida An constructie 2022 Disponibilitate imediat Descrierea Casei Acest duplex este situat in Dambul Rotund, intr-o zona aerisita, de case, accesibila, dar retrasa de la traficul aglomerat si agitatia urbana. Acesta are urmatoarele caracteristici tehnice: - suprafata utila 190 mp; - regim de inaltime - D+P+E - suprafata teren 534 mp; - suprafata gradina 140 mp. Caracteristici: - constructie solida, fundatii de beton, zidarie din caramida, sarpanta din lemn acoperit cu tigla, centrala Viessmann Compartimentare: - demisol: hol (8,89 mp), 2 spatii tehnice (29,21 si 23,40mp), baie (4,51); total: 66,01 mp utili - parter: hol (3,29mp), living (31,93mp), bucatarie (23,76mp), baie (3,52mp); total: 62,50 mp utili - terasa: 28 mp - etaj: hol (4,77mp), dormitor matrimonial (16,33mp) cu baie proprie (6,66mp), 2 dormitoare (13,88 si 13,46mp) , baie (5,51mp); total: 60,61 mp utili Stadiu de predare interior: - sapa autonivelanta. - pereti cu glet si vopsea lavabila alba - ferestre si usi din tamplarie PVC Rehau Synego - usi interioare demisol PVC - calorifere aluminiu - instalatii sanitare la pozitie - instalatie electrica (bransament trifazat, tablouri electrice pe fiecare nivel, prize si intrerupatoare montate) - sistem alarma Stadiul de predare exterior: - izolatie exterioara si tencuiala decorativa - balustrade din sticla securizata - terase placate cu gresie - corpuri iluminat exterior - trotuare si pavaj / 2 locuri de parcare - camere supraveghere Datorita locatiei, dar si pretului avantajos, consider ca reprezinta o oportunitate foarte buna pentru locuit. Pentru a afla mai multe detalii referitoare la aceasta proprietate, contactati-ne acum! ID Proprietate - P31272 Finisaje Izolatii termice (Interior), Pereti (Vopsea lavabila), Ferestre cu geam termopan (PVC), Usa intrare (Metal) Vecinatati si puncte de interes in zona Amenajare strazi (Asfaltate), Iluminat stradal, Mijloace de transport in comun Numar vizualizari: 908 Actualizat: 2023-11-06 09:56:04