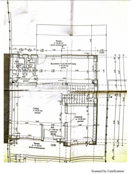
Casa de vanzare, Feleacu, Cluj Feleacu 5 camere • 255 m2 • 972 m2 teren pret vanzare negociabil 119.000 € + 9 + 6 Vandut Caracteristici Tip locuinta Casa Tip imobil Duplex Numar camere 5 Numar bucatarii 1 Numar bai 3 Parcare da Beci nu Gradina da Suprafata utila 255 m2 Suprafata construita 300 m2 Suprafata teren 972 m2 An constructie 2010 Descrierea Casei Welt Imobiliare va propune spre vanzare o casa in localitatea Feleacu la 10 km de Cluj-Napoca. Terenul aferent este de 972 mp, suprafata utila de 255 mp si amprenta de 100 mp. Regim de inaltime D+P+E+pod. Compartimentare: Parter- living, bucatarie, dormitor si baie Etaj- 3 dormitoare, 2 bai si o camera mai mica Mansarda(pod) se pot amenaja 2 camere, baie si hol. Pret negociabil. ID Proprietate - P17181 Vecinatati si puncte de interes in zona Valea Capriorii Amenajare strazi (Pietruite) Numar vizualizari: 2303 Actualizat: 2019-08-23 09:43:18
+ 9 + 6 Vandut Caracteristici Tip locuinta Casa Tip imobil Duplex Numar camere 5 Numar bucatarii 1 Numar bai 3 Parcare da Beci nu Gradina da Suprafata utila 255 m2 Suprafata construita 300 m2 Suprafata teren 972 m2 An constructie 2010 Descrierea Casei Welt Imobiliare va propune spre vanzare o casa in localitatea Feleacu la 10 km de Cluj-Napoca. Terenul aferent este de 972 mp, suprafata utila de 255 mp si amprenta de 100 mp. Regim de inaltime D+P+E+pod. Compartimentare: Parter- living, bucatarie, dormitor si baie Etaj- 3 dormitoare, 2 bai si o camera mai mica Mansarda(pod) se pot amenaja 2 camere, baie si hol. Pret negociabil. ID Proprietate - P17181 Vecinatati si puncte de interes in zona Valea Capriorii Amenajare strazi (Pietruite) Numar vizualizari: 2303 Actualizat: 2019-08-23 09:43:18
Caracteristici Tip locuinta Casa Tip imobil Duplex Numar camere 5 Numar bucatarii 1 Numar bai 3 Parcare da Beci nu Gradina da Suprafata utila 255 m2 Suprafata construita 300 m2 Suprafata teren 972 m2 An constructie 2010 Descrierea Casei Welt Imobiliare va propune spre vanzare o casa in localitatea Feleacu la 10 km de Cluj-Napoca. Terenul aferent este de 972 mp, suprafata utila de 255 mp si amprenta de 100 mp. Regim de inaltime D+P+E+pod. Compartimentare: Parter- living, bucatarie, dormitor si baie Etaj- 3 dormitoare, 2 bai si o camera mai mica Mansarda(pod) se pot amenaja 2 camere, baie si hol. Pret negociabil. ID Proprietate - P17181 Vecinatati si puncte de interes in zona Valea Capriorii Amenajare strazi (Pietruite) Numar vizualizari: 2303 Actualizat: 2019-08-23 09:43:18