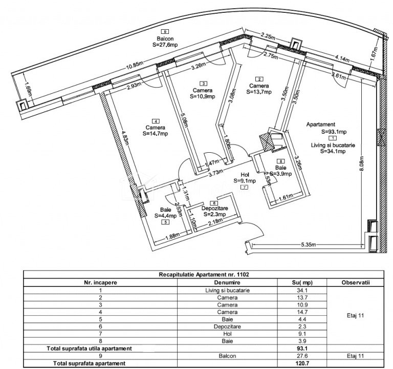
Apartament 4 camere, 3 dormitoare, 2 bai, 2 parcări - Wings Zorilor Cluj-Napoca, Zorilor 4 camere • 93 m2 • 2 bai • etaj 11/14 • decomandatnemobilat pret vanzare 283.729 € + 9 + 6 Caracteristici Tip locuinta Apartament Tip imobil bloc de apartamente Numar camere 4 Numar bucatarii 1 Numar bai 2 Numar terase 1 Parcare da Supr. construita 135 m2 Suprafata utila 93 m2 Compartimentare Decomandat Confort 1 Etaj 11/14 Construit cu Beton An constructie 2025 Disponibilitate imediat Descrierea Apartamentului Caracteristici principale: Suprafață utilă: 93 mp : living + bucătărie open space, 3 dormitoare, 2 băi, zonă de depozitare. Terasa generoasa de 28mp. SEMIFINISAT 2 locuri de parcare incluse în preț: unul la sol, unul pe elevator (deasupra) Preț: 283.729 EUR – fără alte taxe suplimentare ?Localizare: Ansamblul WINGS, cartier Zorilor – una dintre cele mai căutate zone din Cluj-Napoca, cu acces rapid spre centrul orașului, UMF, Spitalul de Recuperare, școli, grădinițe și mijloace de transport. ?Despre ansamblul WINGS: Proiect rezidențial premiat, cu design arhitectural de excepție Construcție modernă, materiale de calitate premium Spații comune largi, întreținute profesionist Lifturi rapide, parcări subterane și supraterane, comunitate selectă ✨Avantaje suplimentare: Priveliște panoramică spectaculoasă de la etajele superioare Spațiu ideal pentru familie sau pentru investiție de lux (închiriere pe termen lung sau regim hotelier) Locuință intabulată, disponibilă imediat. Poze cu titlu de prezentare comerciala ID Proprietate - P48330 Utilitati, Finisaje Utilitati generale: Electricitate, Apa, Canalizare, Cablu TVSistem de incalzire Centrala de imobil, Incalzire in pardoseala Finisaje: Izolatii termice (Bloc izolat termic), Usa intrare (Metal) Dotari: Mobilat (Nemobilat), Dotari imobil (Videointerfon, Lift, Gradina), Diverse (Sistem de alarma, Telecomanda poarta acces auto) Vecinatati si puncte de interes in zona WINGS Frunzisului Amenajare strazi (Asfaltate), Iluminat stradal, Mijloace de transport in comun Numar vizualizari: 1158 Actualizat: 2025-11-26 14:36:59
+ 9 + 6 Caracteristici Tip locuinta Apartament Tip imobil bloc de apartamente Numar camere 4 Numar bucatarii 1 Numar bai 2 Numar terase 1 Parcare da Supr. construita 135 m2 Suprafata utila 93 m2 Compartimentare Decomandat Confort 1 Etaj 11/14 Construit cu Beton An constructie 2025 Disponibilitate imediat Descrierea Apartamentului Caracteristici principale: Suprafață utilă: 93 mp : living + bucătărie open space, 3 dormitoare, 2 băi, zonă de depozitare. Terasa generoasa de 28mp. SEMIFINISAT 2 locuri de parcare incluse în preț: unul la sol, unul pe elevator (deasupra) Preț: 283.729 EUR – fără alte taxe suplimentare ?Localizare: Ansamblul WINGS, cartier Zorilor – una dintre cele mai căutate zone din Cluj-Napoca, cu acces rapid spre centrul orașului, UMF, Spitalul de Recuperare, școli, grădinițe și mijloace de transport. ?Despre ansamblul WINGS: Proiect rezidențial premiat, cu design arhitectural de excepție Construcție modernă, materiale de calitate premium Spații comune largi, întreținute profesionist Lifturi rapide, parcări subterane și supraterane, comunitate selectă ✨Avantaje suplimentare: Priveliște panoramică spectaculoasă de la etajele superioare Spațiu ideal pentru familie sau pentru investiție de lux (închiriere pe termen lung sau regim hotelier) Locuință intabulată, disponibilă imediat. Poze cu titlu de prezentare comerciala ID Proprietate - P48330 Utilitati, Finisaje Utilitati generale: Electricitate, Apa, Canalizare, Cablu TVSistem de incalzire Centrala de imobil, Incalzire in pardoseala Finisaje: Izolatii termice (Bloc izolat termic), Usa intrare (Metal) Dotari: Mobilat (Nemobilat), Dotari imobil (Videointerfon, Lift, Gradina), Diverse (Sistem de alarma, Telecomanda poarta acces auto) Vecinatati si puncte de interes in zona WINGS Frunzisului Amenajare strazi (Asfaltate), Iluminat stradal, Mijloace de transport in comun Numar vizualizari: 1158 Actualizat: 2025-11-26 14:36:59
Caracteristici Tip locuinta Apartament Tip imobil bloc de apartamente Numar camere 4 Numar bucatarii 1 Numar bai 2 Numar terase 1 Parcare da Supr. construita 135 m2 Suprafata utila 93 m2 Compartimentare Decomandat Confort 1 Etaj 11/14 Construit cu Beton An constructie 2025 Disponibilitate imediat Descrierea Apartamentului Caracteristici principale: Suprafață utilă: 93 mp : living + bucătărie open space, 3 dormitoare, 2 băi, zonă de depozitare. Terasa generoasa de 28mp. SEMIFINISAT 2 locuri de parcare incluse în preț: unul la sol, unul pe elevator (deasupra) Preț: 283.729 EUR – fără alte taxe suplimentare ?Localizare: Ansamblul WINGS, cartier Zorilor – una dintre cele mai căutate zone din Cluj-Napoca, cu acces rapid spre centrul orașului, UMF, Spitalul de Recuperare, școli, grădinițe și mijloace de transport. ?Despre ansamblul WINGS: Proiect rezidențial premiat, cu design arhitectural de excepție Construcție modernă, materiale de calitate premium Spații comune largi, întreținute profesionist Lifturi rapide, parcări subterane și supraterane, comunitate selectă ✨Avantaje suplimentare: Priveliște panoramică spectaculoasă de la etajele superioare Spațiu ideal pentru familie sau pentru investiție de lux (închiriere pe termen lung sau regim hotelier) Locuință intabulată, disponibilă imediat. Poze cu titlu de prezentare comerciala ID Proprietate - P48330 Utilitati, Finisaje Utilitati generale: Electricitate, Apa, Canalizare, Cablu TVSistem de incalzire Centrala de imobil, Incalzire in pardoseala Finisaje: Izolatii termice (Bloc izolat termic), Usa intrare (Metal) Dotari: Mobilat (Nemobilat), Dotari imobil (Videointerfon, Lift, Gradina), Diverse (Sistem de alarma, Telecomanda poarta acces auto) Vecinatati si puncte de interes in zona WINGS Frunzisului Amenajare strazi (Asfaltate), Iluminat stradal, Mijloace de transport in comun Numar vizualizari: 1158 Actualizat: 2025-11-26 14:36:59