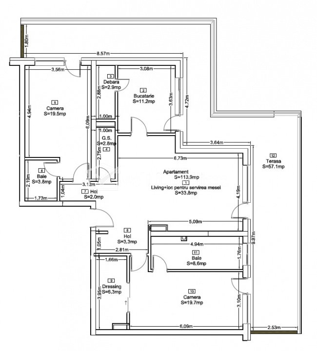
Penthouse 3 cam 114mp, 3 bai, terasa 57mp, Zorilor - Lidl Frunzisului Cluj-Napoca, Zorilor 3 camere • 114 m2 • 3 bai • etaj /14 • decomandatnemobilat pret vanzare negociabil 358.500 € + 18 + 15 Caracteristici Tip locuinta Penthouse Tip imobil bloc de apartamente Numar camere 3 Numar bucatarii 1 Numar bai 3 Numar terase 1 Parcare nu Supr. construita 171 m2 Suprafata utila 114 m2 Compartimentare Decomandat Confort Marit Etaj /14 Construit cu Beton An constructie 2025 Disponibilitate imediat Descrierea Apartamentului Apartament tip penthouse in bloc nou zona Lidl Frunzisului cu panorama superba, orientare Sud-Est Suprafata utila 114mp si terasa panoramica de 57mp cu acces din fiecare incapere. Compus din living spatios cu loc de luat masa, bucatarie separata cu debara, baie de serviciu pe hol Dormitor matrimonial 35mp! cu dressing si baie proprie, acces pe terasa Al 2-lea dormitor cu baie proprie, acces pe terasa Apartamentul se vinde semifinisat cu centrala proprie pe gaz, incalzire in pardoseala, instalatii pe pozitie, pereti gletuiti. Loc parcare exterioara la pretul de 15.000 eur Daca se achizitioneaza pe firma platitoare de TVA se poate deduce 200 eur/mp din pretul de lista ID Proprietate - P51614 Utilitati, Finisaje Utilitati generale: Electricitate, Apa, Gaz, Canalizare, Cablu TVSistem de incalzire Centrala termica, Incalzire in pardoseala Finisaje: Izolatii termice (Exterior, Bloc izolat termic), Usa intrare (Metal) Dotari: Alte spatii utile (Terasa, WC Serviciu, Debara), Contorizare (Apometre, Contor gaz), Mobilat (Nemobilat), Dotari imobil (Interfon, Lift, Spatii agrement, Acoperis, Curte), Diverse (Senzor de fum, Sistem de alarma, Telecomanda poarta acces auto) Vecinatati si puncte de interes in zona LIDL Frunzisului Amenajare strazi (Asfaltate), Iluminat stradal, Mijloace de transport in comun Numar vizualizari: 973 Actualizat: 2026-04-08 13:54:48
+ 18 + 15 Caracteristici Tip locuinta Penthouse Tip imobil bloc de apartamente Numar camere 3 Numar bucatarii 1 Numar bai 3 Numar terase 1 Parcare nu Supr. construita 171 m2 Suprafata utila 114 m2 Compartimentare Decomandat Confort Marit Etaj /14 Construit cu Beton An constructie 2025 Disponibilitate imediat Descrierea Apartamentului Apartament tip penthouse in bloc nou zona Lidl Frunzisului cu panorama superba, orientare Sud-Est Suprafata utila 114mp si terasa panoramica de 57mp cu acces din fiecare incapere. Compus din living spatios cu loc de luat masa, bucatarie separata cu debara, baie de serviciu pe hol Dormitor matrimonial 35mp! cu dressing si baie proprie, acces pe terasa Al 2-lea dormitor cu baie proprie, acces pe terasa Apartamentul se vinde semifinisat cu centrala proprie pe gaz, incalzire in pardoseala, instalatii pe pozitie, pereti gletuiti. Loc parcare exterioara la pretul de 15.000 eur Daca se achizitioneaza pe firma platitoare de TVA se poate deduce 200 eur/mp din pretul de lista ID Proprietate - P51614 Utilitati, Finisaje Utilitati generale: Electricitate, Apa, Gaz, Canalizare, Cablu TVSistem de incalzire Centrala termica, Incalzire in pardoseala Finisaje: Izolatii termice (Exterior, Bloc izolat termic), Usa intrare (Metal) Dotari: Alte spatii utile (Terasa, WC Serviciu, Debara), Contorizare (Apometre, Contor gaz), Mobilat (Nemobilat), Dotari imobil (Interfon, Lift, Spatii agrement, Acoperis, Curte), Diverse (Senzor de fum, Sistem de alarma, Telecomanda poarta acces auto) Vecinatati si puncte de interes in zona LIDL Frunzisului Amenajare strazi (Asfaltate), Iluminat stradal, Mijloace de transport in comun Numar vizualizari: 973 Actualizat: 2026-04-08 13:54:48
Caracteristici Tip locuinta Penthouse Tip imobil bloc de apartamente Numar camere 3 Numar bucatarii 1 Numar bai 3 Numar terase 1 Parcare nu Supr. construita 171 m2 Suprafata utila 114 m2 Compartimentare Decomandat Confort Marit Etaj /14 Construit cu Beton An constructie 2025 Disponibilitate imediat Descrierea Apartamentului Apartament tip penthouse in bloc nou zona Lidl Frunzisului cu panorama superba, orientare Sud-Est Suprafata utila 114mp si terasa panoramica de 57mp cu acces din fiecare incapere. Compus din living spatios cu loc de luat masa, bucatarie separata cu debara, baie de serviciu pe hol Dormitor matrimonial 35mp! cu dressing si baie proprie, acces pe terasa Al 2-lea dormitor cu baie proprie, acces pe terasa Apartamentul se vinde semifinisat cu centrala proprie pe gaz, incalzire in pardoseala, instalatii pe pozitie, pereti gletuiti. Loc parcare exterioara la pretul de 15.000 eur Daca se achizitioneaza pe firma platitoare de TVA se poate deduce 200 eur/mp din pretul de lista ID Proprietate - P51614 Utilitati, Finisaje Utilitati generale: Electricitate, Apa, Gaz, Canalizare, Cablu TVSistem de incalzire Centrala termica, Incalzire in pardoseala Finisaje: Izolatii termice (Exterior, Bloc izolat termic), Usa intrare (Metal) Dotari: Alte spatii utile (Terasa, WC Serviciu, Debara), Contorizare (Apometre, Contor gaz), Mobilat (Nemobilat), Dotari imobil (Interfon, Lift, Spatii agrement, Acoperis, Curte), Diverse (Senzor de fum, Sistem de alarma, Telecomanda poarta acces auto) Vecinatati si puncte de interes in zona LIDL Frunzisului Amenajare strazi (Asfaltate), Iluminat stradal, Mijloace de transport in comun Numar vizualizari: 973 Actualizat: 2026-04-08 13:54:48