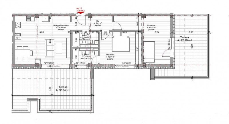
Apartament 3 camere, Borhanci, terase 53 mp, acces facil spre Gheorgheni Cluj-Napoca, Borhanci 3 camere • 71.07 m2 • 2 bai • etaj 3/2 • semidecomandatnecesita renovare pret vanzare negociabil 168.228 € + TVA + 8 + 5 Vandut Caracteristici Tip locuinta Apartament Tip imobil bloc de apartamente Numar camere 3 Numar bucatarii 1 Numar bai 2 Numar terase 2 Numar garaje 1 Parcare nu Supr. construita 85 m2 Suprafata utila 71.07 m2 Compartimentare Semidecomandat Confort 1 Etaj 3/2 Construit cu Caramida An constructie 2017 Disponibilitate Imediat Descrierea Apartamentului Avem placerea de a va prezenta un nou concept imobiliar modern - o noutate pe piata imobiliara a Clujului, in ceea ce priveste stilul de viata, beneficiile oferite viitorilor locuitori, dar si prin solutiile tehnice moderne si materialele folosite pentru constructii. Ansamblul este construit pe un teren in suprafata de 21.000 mp, in zona cea mai verde a orasului, ofera o panorama memorabila asupra orasului, zone de relaxare aerisite, pasaje pietonale si locuri de parcare. Atmosfera civilizata, siguranta, confortul, serviciile oferite (spatii comerciale, gradinita etc.), in cadrul ansamblului reprezinta premisele pentru a forma o adevarata comunitate. Ansamblul cuprinde 64 de apartamente dispuse in 4 imobile cu lift, avand regim de inaltime mic (S+P+2E+ER). Locuintele exclusiviste cuprind o serie de detalii, pe langa cele descrise mai sus, insa ne dorim sa le descoperim impreuna intr-o viitoare intalnire. Avem garantia ca veti avea oportunitatea de a descoperi surprize placute, ca noi proprietari ai unui apartament de lux. In continuare vor mai fi o serie de detalii si specificatii ale fiecarui apartament si al intregului ansamblu. Apartamentul este situat la etajul retras, este compartimentat in living cu bucatarie, 2 dormitoare, 2 bai si o terasa finisata. Apartamentul este unul functional datorita spatiilor inteligent compartimentate si a suprafetei folosite la maximum, neavand spatii neutilizate. Specificatii tehnice: - zidarie din caramida Porotherm cu termosistem din vata bazaltica (nu polistiren) - pereti exteriori placati cu caramida aparenta - terase si spatii comune finisate cu materiale de cea mai buna calitate - garaje subterane cu boxe - geamuri termopan cu 3 sticle si 6 camere - lifturi silentioase, cu cabina si usi din inox ID Proprietate - P6668 Utilitati, Finisaje Utilitati generale: Electricitate, Apa, Gaz, Canalizare, Cablu TVSistem de incalzire Centrala termica, Calorifere Finisaje: Izolatii termice (Bloc izolat termic), Stare interior (Semifinisat), Ferestre cu geam termopan (PVC), Usa intrare (Metal) Dotari: Alte spatii utile (Boxa la subsol), Contorizare (Apometre, Contor gaz), Dotari imobil (Interfon, Lift, Curte comuna) Vecinatati si puncte de interes in zona Zona de case si vile Amenajare strazi (Asfaltate) Numar vizualizari: 8960 Actualizat: 2023-07-07 07:44:42
+ 8 + 5 Vandut Caracteristici Tip locuinta Apartament Tip imobil bloc de apartamente Numar camere 3 Numar bucatarii 1 Numar bai 2 Numar terase 2 Numar garaje 1 Parcare nu Supr. construita 85 m2 Suprafata utila 71.07 m2 Compartimentare Semidecomandat Confort 1 Etaj 3/2 Construit cu Caramida An constructie 2017 Disponibilitate Imediat Descrierea Apartamentului Avem placerea de a va prezenta un nou concept imobiliar modern - o noutate pe piata imobiliara a Clujului, in ceea ce priveste stilul de viata, beneficiile oferite viitorilor locuitori, dar si prin solutiile tehnice moderne si materialele folosite pentru constructii. Ansamblul este construit pe un teren in suprafata de 21.000 mp, in zona cea mai verde a orasului, ofera o panorama memorabila asupra orasului, zone de relaxare aerisite, pasaje pietonale si locuri de parcare. Atmosfera civilizata, siguranta, confortul, serviciile oferite (spatii comerciale, gradinita etc.), in cadrul ansamblului reprezinta premisele pentru a forma o adevarata comunitate. Ansamblul cuprinde 64 de apartamente dispuse in 4 imobile cu lift, avand regim de inaltime mic (S+P+2E+ER). Locuintele exclusiviste cuprind o serie de detalii, pe langa cele descrise mai sus, insa ne dorim sa le descoperim impreuna intr-o viitoare intalnire. Avem garantia ca veti avea oportunitatea de a descoperi surprize placute, ca noi proprietari ai unui apartament de lux. In continuare vor mai fi o serie de detalii si specificatii ale fiecarui apartament si al intregului ansamblu. Apartamentul este situat la etajul retras, este compartimentat in living cu bucatarie, 2 dormitoare, 2 bai si o terasa finisata. Apartamentul este unul functional datorita spatiilor inteligent compartimentate si a suprafetei folosite la maximum, neavand spatii neutilizate. Specificatii tehnice: - zidarie din caramida Porotherm cu termosistem din vata bazaltica (nu polistiren) - pereti exteriori placati cu caramida aparenta - terase si spatii comune finisate cu materiale de cea mai buna calitate - garaje subterane cu boxe - geamuri termopan cu 3 sticle si 6 camere - lifturi silentioase, cu cabina si usi din inox ID Proprietate - P6668 Utilitati, Finisaje Utilitati generale: Electricitate, Apa, Gaz, Canalizare, Cablu TVSistem de incalzire Centrala termica, Calorifere Finisaje: Izolatii termice (Bloc izolat termic), Stare interior (Semifinisat), Ferestre cu geam termopan (PVC), Usa intrare (Metal) Dotari: Alte spatii utile (Boxa la subsol), Contorizare (Apometre, Contor gaz), Dotari imobil (Interfon, Lift, Curte comuna) Vecinatati si puncte de interes in zona Zona de case si vile Amenajare strazi (Asfaltate) Numar vizualizari: 8960 Actualizat: 2023-07-07 07:44:42
Caracteristici Tip locuinta Apartament Tip imobil bloc de apartamente Numar camere 3 Numar bucatarii 1 Numar bai 2 Numar terase 2 Numar garaje 1 Parcare nu Supr. construita 85 m2 Suprafata utila 71.07 m2 Compartimentare Semidecomandat Confort 1 Etaj 3/2 Construit cu Caramida An constructie 2017 Disponibilitate Imediat Descrierea Apartamentului Avem placerea de a va prezenta un nou concept imobiliar modern - o noutate pe piata imobiliara a Clujului, in ceea ce priveste stilul de viata, beneficiile oferite viitorilor locuitori, dar si prin solutiile tehnice moderne si materialele folosite pentru constructii. Ansamblul este construit pe un teren in suprafata de 21.000 mp, in zona cea mai verde a orasului, ofera o panorama memorabila asupra orasului, zone de relaxare aerisite, pasaje pietonale si locuri de parcare. Atmosfera civilizata, siguranta, confortul, serviciile oferite (spatii comerciale, gradinita etc.), in cadrul ansamblului reprezinta premisele pentru a forma o adevarata comunitate. Ansamblul cuprinde 64 de apartamente dispuse in 4 imobile cu lift, avand regim de inaltime mic (S+P+2E+ER). Locuintele exclusiviste cuprind o serie de detalii, pe langa cele descrise mai sus, insa ne dorim sa le descoperim impreuna intr-o viitoare intalnire. Avem garantia ca veti avea oportunitatea de a descoperi surprize placute, ca noi proprietari ai unui apartament de lux. In continuare vor mai fi o serie de detalii si specificatii ale fiecarui apartament si al intregului ansamblu. Apartamentul este situat la etajul retras, este compartimentat in living cu bucatarie, 2 dormitoare, 2 bai si o terasa finisata. Apartamentul este unul functional datorita spatiilor inteligent compartimentate si a suprafetei folosite la maximum, neavand spatii neutilizate. Specificatii tehnice: - zidarie din caramida Porotherm cu termosistem din vata bazaltica (nu polistiren) - pereti exteriori placati cu caramida aparenta - terase si spatii comune finisate cu materiale de cea mai buna calitate - garaje subterane cu boxe - geamuri termopan cu 3 sticle si 6 camere - lifturi silentioase, cu cabina si usi din inox ID Proprietate - P6668 Utilitati, Finisaje Utilitati generale: Electricitate, Apa, Gaz, Canalizare, Cablu TVSistem de incalzire Centrala termica, Calorifere Finisaje: Izolatii termice (Bloc izolat termic), Stare interior (Semifinisat), Ferestre cu geam termopan (PVC), Usa intrare (Metal) Dotari: Alte spatii utile (Boxa la subsol), Contorizare (Apometre, Contor gaz), Dotari imobil (Interfon, Lift, Curte comuna) Vecinatati si puncte de interes in zona Zona de case si vile Amenajare strazi (Asfaltate) Numar vizualizari: 8960 Actualizat: 2023-07-07 07:44:42