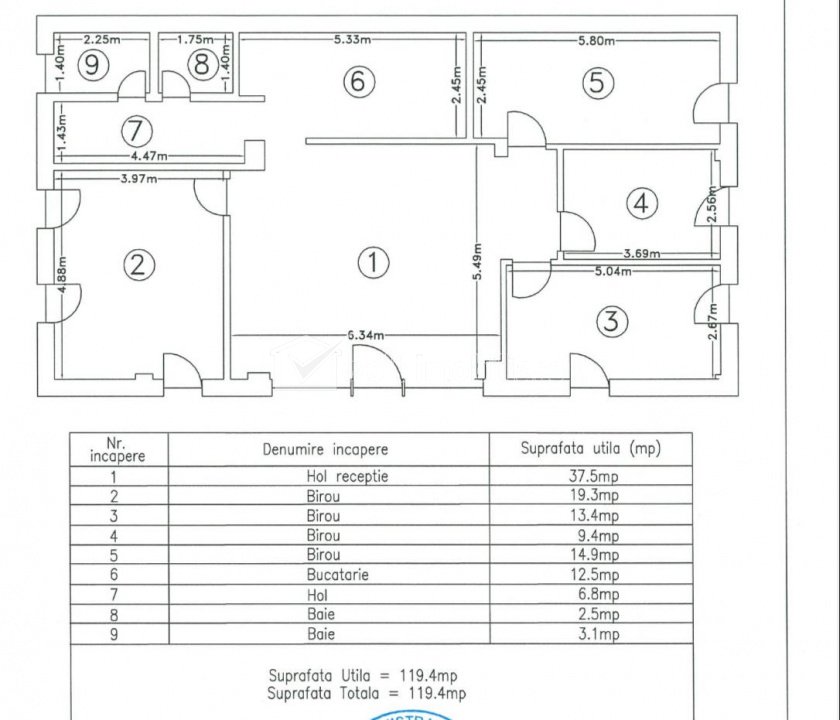
Spatiu de birou sau spatiu comercial in Sannicoara Sannicoara 120 m2 pret chirie 1.500 €/luna 13 € /m2 + 6 + 3 Caracteristici Tip spatiu Birou Suprafata utila 120 m2 Nr. incaperi -- Bai 2 Terase -- Nr. parcari 3 Nr. garaje -- Tip imobil bloc Clasa birouri -- Etaj parter/4 Regim de inaltime 4E Constructie din Beton Anul constructiei -- Sup. construita 140 m2 Suprafata curte -- Disponibilitate imediat Descrierea spatiului Se inchireaza spatiu de birou sau spatiu comercial in Sannicoara, la parterul unui bloc nou construit. Acesta este semifinisat momentan, insa se poate finisa la cerere in functie de cerinte. In acte este spatiu comercial, deci se preteaza si pentru activitati comerciale. Avand o suprafata utila de 120 mp, aceta se poate compartimenta oricum. Este perfect pentru birouri, cabinete medicale, showroom si cafenele. Pentru mai multe detalii nu ezitati sa ne contactati. ID Proprietate - P50515 Utilitati Utilitati generale: Electricitate, Apa, Gaz, CanalizareSistem de incalzire: Centrala termica Finisaje: Izolatii termice (Exterior), Ferestre cu geam termopan (PVC) Numar vizualizari: 1088 Actualizat: 2026-04-03 14:26:46
+ 6 + 3 Caracteristici Tip spatiu Birou Suprafata utila 120 m2 Nr. incaperi -- Bai 2 Terase -- Nr. parcari 3 Nr. garaje -- Tip imobil bloc Clasa birouri -- Etaj parter/4 Regim de inaltime 4E Constructie din Beton Anul constructiei -- Sup. construita 140 m2 Suprafata curte -- Disponibilitate imediat Descrierea spatiului Se inchireaza spatiu de birou sau spatiu comercial in Sannicoara, la parterul unui bloc nou construit. Acesta este semifinisat momentan, insa se poate finisa la cerere in functie de cerinte. In acte este spatiu comercial, deci se preteaza si pentru activitati comerciale. Avand o suprafata utila de 120 mp, aceta se poate compartimenta oricum. Este perfect pentru birouri, cabinete medicale, showroom si cafenele. Pentru mai multe detalii nu ezitati sa ne contactati. ID Proprietate - P50515 Utilitati Utilitati generale: Electricitate, Apa, Gaz, CanalizareSistem de incalzire: Centrala termica Finisaje: Izolatii termice (Exterior), Ferestre cu geam termopan (PVC) Numar vizualizari: 1088 Actualizat: 2026-04-03 14:26:46
Caracteristici Tip spatiu Birou Suprafata utila 120 m2 Nr. incaperi -- Bai 2 Terase -- Nr. parcari 3 Nr. garaje -- Tip imobil bloc Clasa birouri -- Etaj parter/4 Regim de inaltime 4E Constructie din Beton Anul constructiei -- Sup. construita 140 m2 Suprafata curte -- Disponibilitate imediat Descrierea spatiului Se inchireaza spatiu de birou sau spatiu comercial in Sannicoara, la parterul unui bloc nou construit. Acesta este semifinisat momentan, insa se poate finisa la cerere in functie de cerinte. In acte este spatiu comercial, deci se preteaza si pentru activitati comerciale. Avand o suprafata utila de 120 mp, aceta se poate compartimenta oricum. Este perfect pentru birouri, cabinete medicale, showroom si cafenele. Pentru mai multe detalii nu ezitati sa ne contactati. ID Proprietate - P50515 Utilitati Utilitati generale: Electricitate, Apa, Gaz, CanalizareSistem de incalzire: Centrala termica Finisaje: Izolatii termice (Exterior), Ferestre cu geam termopan (PVC) Numar vizualizari: 1088 Actualizat: 2026-04-03 14:26:46