Spatiu diverse activitati 244mp, inaltime 4.25m, Interservisan Cluj-Napoca, Gheorgheni 2 camere • 244 m2 pret chirie negociabil 1.800 €/luna 1.600 €/luna 7 € /m2 + 5 Inchiriat Caracteristici Tip spatiu Spatiu Comercial Suprafata utila 244 m2 Nr. incaperi 2 Bai 4 Terase -- Nr. parcari -- Nr. garaje -- Tip imobil bloc Etaj 1/7 Regim de inaltime 7E Constructie din Beton Anul constructiei -- Sup. construita -- Suprafata curte -- Disponibilitate imediat Descrierea spatiului De inchiriat spatiu multifunctional situat in complexul Interservisan Gheorgheni, potrivit pentru activitati medicale, sportive, kineto, etc Etaj 1, inaltime utila 4m25, toate utilitatile disponibile inclusiv curent trifazic. Spatiul este compus din 2 incaperi generoase, vestiare b/f cu dusuri si grupuri sanitare, sauna Exista autorizatie pentru 2 firme luminoase pe fatada cladirii ID Proprietate - P48168 Utilitati Utilitati generale: Electricitate, Curent trifazic, Apa, Gaz, CanalizareSistem de incalzire: Centrala termica, CalorifereClimatizare: Aer conditionat Finisaje: Izolatii termice (Bloc izolat termic), Podele (Gresie), Stare interior (Necesita renovare), Iluminat (Lampi, Exterior cladire, Lumina naturala) Dotari: Contorizare (Nemobilat) Vecinatati si puncte de interes in zona Interservisan, 18Gym, Iulius Mall Numar vizualizari: 1257 Actualizat: 2026-01-05 11:14:03
+ 5 Inchiriat Caracteristici Tip spatiu Spatiu Comercial Suprafata utila 244 m2 Nr. incaperi 2 Bai 4 Terase -- Nr. parcari -- Nr. garaje -- Tip imobil bloc Etaj 1/7 Regim de inaltime 7E Constructie din Beton Anul constructiei -- Sup. construita -- Suprafata curte -- Disponibilitate imediat Descrierea spatiului De inchiriat spatiu multifunctional situat in complexul Interservisan Gheorgheni, potrivit pentru activitati medicale, sportive, kineto, etc Etaj 1, inaltime utila 4m25, toate utilitatile disponibile inclusiv curent trifazic. Spatiul este compus din 2 incaperi generoase, vestiare b/f cu dusuri si grupuri sanitare, sauna Exista autorizatie pentru 2 firme luminoase pe fatada cladirii ID Proprietate - P48168 Utilitati Utilitati generale: Electricitate, Curent trifazic, Apa, Gaz, CanalizareSistem de incalzire: Centrala termica, CalorifereClimatizare: Aer conditionat Finisaje: Izolatii termice (Bloc izolat termic), Podele (Gresie), Stare interior (Necesita renovare), Iluminat (Lampi, Exterior cladire, Lumina naturala) Dotari: Contorizare (Nemobilat) Vecinatati si puncte de interes in zona Interservisan, 18Gym, Iulius Mall Numar vizualizari: 1257 Actualizat: 2026-01-05 11:14:03
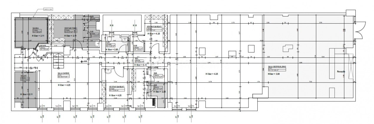
Caracteristici Tip spatiu Spatiu Comercial Suprafata utila 244 m2 Nr. incaperi 2 Bai 4 Terase -- Nr. parcari -- Nr. garaje -- Tip imobil bloc Etaj 1/7 Regim de inaltime 7E Constructie din Beton Anul constructiei -- Sup. construita -- Suprafata curte -- Disponibilitate imediat Descrierea spatiului De inchiriat spatiu multifunctional situat in complexul Interservisan Gheorgheni, potrivit pentru activitati medicale, sportive, kineto, etc Etaj 1, inaltime utila 4m25, toate utilitatile disponibile inclusiv curent trifazic. Spatiul este compus din 2 incaperi generoase, vestiare b/f cu dusuri si grupuri sanitare, sauna Exista autorizatie pentru 2 firme luminoase pe fatada cladirii ID Proprietate - P48168 Utilitati Utilitati generale: Electricitate, Curent trifazic, Apa, Gaz, CanalizareSistem de incalzire: Centrala termica, CalorifereClimatizare: Aer conditionat Finisaje: Izolatii termice (Bloc izolat termic), Podele (Gresie), Stare interior (Necesita renovare), Iluminat (Lampi, Exterior cladire, Lumina naturala) Dotari: Contorizare (Nemobilat) Vecinatati si puncte de interes in zona Interservisan, 18Gym, Iulius Mall Numar vizualizari: 1257 Actualizat: 2026-01-05 11:14:03