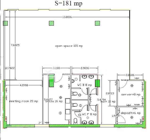
Birou 181mp open space in Business Center, zona Dorobantilor Cluj-Napoca, Centru 3 camere • 181 m2 pret chirie 2.534 €/luna + TVA 14 € /m2 + 6 + 3 Inchiriat Caracteristici Tip spatiu Birou Suprafata utila 181 m2 Nr. incaperi 3 Bai 1 Terase -- Nr. parcari -- Nr. garaje -- Tip imobil cladire de birouri Clasa birouri A Etaj 1/8 Regim de inaltime 8E Constructie din Caramida Anul constructiei -- Sup. construita 185 m2 Suprafata curte -- Descrierea spatiului De inchiriat un spatiu de birou intr-un Business Center situat in zona centrala langa Tribunalul Cluj. Compus din suprafata open space de 105mp, meeting room, chicineta, grupuri sanitare proprii si un mic depozit. Centrul de Business ofera: - parking subteran pe doua niveluri, cu acces controlat (bariere, carduri/tichete) ▪ servicii suport (secretariat general, receptie, control acces, copiere, listare) ▪ paza si securitatea (paza umana 24 ore/24 si supraveghere video) ▪ servicii de curatenie si intretinere a spatiilor comune ▪ grup electrogen (generator) pentru situatiile de urgenta ▪ servicii de Food & Beverage in Restaurant&Lounge Posibilitatea de inchiriere locuri de parcare subterane, contra cost. ID Proprietate - P20114 Utilitati Utilitati generale: Electricitate, Apa, Canalizare, Cablu TV, TelefonClimatizare: Aer conditionat Finisaje: Izolatii termice (Exterior), Podele (Mocheta), Ferestre cu geam termopan (Aluminiu), Iluminat (Lampi, Spoturi, Aplice, Exterior cladire, Lumina naturala) Dotari: Contorizare (Apometre, Contor caldura), Dotari imobil (Videointerfon, Lift, Curte comuna), CFR, Spatiu verde amenajat Vecinatati si puncte de interes in zona Tribunalul Cluj, Dorobantilor, Teatrul National Numar vizualizari: 4917 Actualizat: 2020-08-19 16:24:09
+ 6 + 3 Inchiriat Caracteristici Tip spatiu Birou Suprafata utila 181 m2 Nr. incaperi 3 Bai 1 Terase -- Nr. parcari -- Nr. garaje -- Tip imobil cladire de birouri Clasa birouri A Etaj 1/8 Regim de inaltime 8E Constructie din Caramida Anul constructiei -- Sup. construita 185 m2 Suprafata curte -- Descrierea spatiului De inchiriat un spatiu de birou intr-un Business Center situat in zona centrala langa Tribunalul Cluj. Compus din suprafata open space de 105mp, meeting room, chicineta, grupuri sanitare proprii si un mic depozit. Centrul de Business ofera: - parking subteran pe doua niveluri, cu acces controlat (bariere, carduri/tichete) ▪ servicii suport (secretariat general, receptie, control acces, copiere, listare) ▪ paza si securitatea (paza umana 24 ore/24 si supraveghere video) ▪ servicii de curatenie si intretinere a spatiilor comune ▪ grup electrogen (generator) pentru situatiile de urgenta ▪ servicii de Food & Beverage in Restaurant&Lounge Posibilitatea de inchiriere locuri de parcare subterane, contra cost. ID Proprietate - P20114 Utilitati Utilitati generale: Electricitate, Apa, Canalizare, Cablu TV, TelefonClimatizare: Aer conditionat Finisaje: Izolatii termice (Exterior), Podele (Mocheta), Ferestre cu geam termopan (Aluminiu), Iluminat (Lampi, Spoturi, Aplice, Exterior cladire, Lumina naturala) Dotari: Contorizare (Apometre, Contor caldura), Dotari imobil (Videointerfon, Lift, Curte comuna), CFR, Spatiu verde amenajat Vecinatati si puncte de interes in zona Tribunalul Cluj, Dorobantilor, Teatrul National Numar vizualizari: 4917 Actualizat: 2020-08-19 16:24:09
Caracteristici Tip spatiu Birou Suprafata utila 181 m2 Nr. incaperi 3 Bai 1 Terase -- Nr. parcari -- Nr. garaje -- Tip imobil cladire de birouri Clasa birouri A Etaj 1/8 Regim de inaltime 8E Constructie din Caramida Anul constructiei -- Sup. construita 185 m2 Suprafata curte -- Descrierea spatiului De inchiriat un spatiu de birou intr-un Business Center situat in zona centrala langa Tribunalul Cluj. Compus din suprafata open space de 105mp, meeting room, chicineta, grupuri sanitare proprii si un mic depozit. Centrul de Business ofera: - parking subteran pe doua niveluri, cu acces controlat (bariere, carduri/tichete) ▪ servicii suport (secretariat general, receptie, control acces, copiere, listare) ▪ paza si securitatea (paza umana 24 ore/24 si supraveghere video) ▪ servicii de curatenie si intretinere a spatiilor comune ▪ grup electrogen (generator) pentru situatiile de urgenta ▪ servicii de Food & Beverage in Restaurant&Lounge Posibilitatea de inchiriere locuri de parcare subterane, contra cost. ID Proprietate - P20114 Utilitati Utilitati generale: Electricitate, Apa, Canalizare, Cablu TV, TelefonClimatizare: Aer conditionat Finisaje: Izolatii termice (Exterior), Podele (Mocheta), Ferestre cu geam termopan (Aluminiu), Iluminat (Lampi, Spoturi, Aplice, Exterior cladire, Lumina naturala) Dotari: Contorizare (Apometre, Contor caldura), Dotari imobil (Videointerfon, Lift, Curte comuna), CFR, Spatiu verde amenajat Vecinatati si puncte de interes in zona Tribunalul Cluj, Dorobantilor, Teatrul National Numar vizualizari: 4917 Actualizat: 2020-08-19 16:24:09