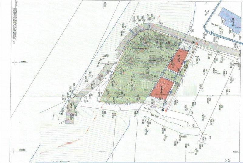
Telek eladó on Cluj-napoca, Zóna Manastur Cluj-Napoca, Manastur föld belsejében • 1544 m2 • utcafront 40 m eladási ár alkudható 163 000 € 150 000 € + 8 + 5 Eladott Jellemzők Ingatlan típusa Föld belső Föld polgári Méret 1544 m2 Utcafront 40 m Utcafrontok száma 3 Közművek Víz, Csatornázás, Gáz, Villanyáram Megtekintések száma: 6376 Frissítve: 2021-10-27 16:20:53
+ 8 + 5 Eladott Jellemzők Ingatlan típusa Föld belső Föld polgári Méret 1544 m2 Utcafront 40 m Utcafrontok száma 3 Közművek Víz, Csatornázás, Gáz, Villanyáram Megtekintések száma: 6376 Frissítve: 2021-10-27 16:20:53
Jellemzők Ingatlan típusa Föld belső Föld polgári Méret 1544 m2 Utcafront 40 m Utcafrontok száma 3 Közművek Víz, Csatornázás, Gáz, Villanyáram Megtekintések száma: 6376 Frissítve: 2021-10-27 16:20:53