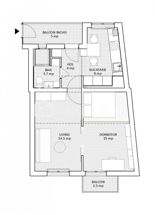
Lakás 2 szobák eladó on Cluj-napoca, Zóna Centru Cluj-Napoca, Centru 2 szobák • 50 m2 • 1 fürdőszoba • emelet 4/4 • decomandatfinisat • mobilat complet eladási ár alkudható 185 000 € + 7 + 4 Eladott Jellemzők Ingatlan típusa Lakás Szobák száma 2 Konyhák száma 1 Fürdők száma 1 Erkélyek száma 1 Parkoló nem Beépített terület 60 m2 Hasznos terület 50 m2 Beosztás Decomandat Komfort 1 Emelet 4/4 ...épített Tégla Az apartman leírása Olyan befektetési ingatlant keres, amely biztos és állandó bevételi forrást generál? A GF+4 magasságú, vasbeton szerkezetű téglából épült, kaputelefonnal felszerelt, déli és nyugati fekvésű lakás 4. emeletén található, ez a lakás lehet, hogy pont az lesz, amit keres! A környék ebből a szempontból nagyon jó, a lakás közel van az Unirii térhez és a Központi Áruházhoz. Az 50 négyzetméter a következőképpen oszlik meg: - 1 konyha - 1 fürdőszoba - 2 szoba és 2 erkély. A felületek újak, és kiemelik: - parketta - kerámia burkolatok - dupla üvegezésű ablakok - falak mosható festékkel - fém ajtó a bejáratnál - cellás ajtók belül. A hőkomfortról saját központi fűtés és radiátor beépítés gondoskodik. További részletekért vagy a megtekintés időpontjának egyeztetéséért forduljon hozzánk, a Welt Imobiliare Teamhez Ingatlan azonosítója - P46520 Közművek, Belső kialakítás Általános közművek: Villanyáram, Víz, Gáz, CsatornázásFűtésrendszer Hőközpont, RadiátorokBelső kialakítás Parketta, Járólap, Csempe, Lemosható falFelszereltség Gázóra Megtekintések száma: 895 Frissítve: 2025-05-02 09:04:07
Cluj-Napoca, Centru 2 szobák • 50 m2 • 1 fürdőszoba • emelet 4/4 • decomandatfinisat • mobilat complet
+ 7 + 4 Eladott Jellemzők Ingatlan típusa Lakás Szobák száma 2 Konyhák száma 1 Fürdők száma 1 Erkélyek száma 1 Parkoló nem Beépített terület 60 m2 Hasznos terület 50 m2 Beosztás Decomandat Komfort 1 Emelet 4/4 ...épített Tégla Az apartman leírása Olyan befektetési ingatlant keres, amely biztos és állandó bevételi forrást generál? A GF+4 magasságú, vasbeton szerkezetű téglából épült, kaputelefonnal felszerelt, déli és nyugati fekvésű lakás 4. emeletén található, ez a lakás lehet, hogy pont az lesz, amit keres! A környék ebből a szempontból nagyon jó, a lakás közel van az Unirii térhez és a Központi Áruházhoz. Az 50 négyzetméter a következőképpen oszlik meg: - 1 konyha - 1 fürdőszoba - 2 szoba és 2 erkély. A felületek újak, és kiemelik: - parketta - kerámia burkolatok - dupla üvegezésű ablakok - falak mosható festékkel - fém ajtó a bejáratnál - cellás ajtók belül. A hőkomfortról saját központi fűtés és radiátor beépítés gondoskodik. További részletekért vagy a megtekintés időpontjának egyeztetéséért forduljon hozzánk, a Welt Imobiliare Teamhez Ingatlan azonosítója - P46520 Közművek, Belső kialakítás Általános közművek: Villanyáram, Víz, Gáz, CsatornázásFűtésrendszer Hőközpont, RadiátorokBelső kialakítás Parketta, Járólap, Csempe, Lemosható falFelszereltség Gázóra Megtekintések száma: 895 Frissítve: 2025-05-02 09:04:07
Jellemzők Ingatlan típusa Lakás Szobák száma 2 Konyhák száma 1 Fürdők száma 1 Erkélyek száma 1 Parkoló nem Beépített terület 60 m2 Hasznos terület 50 m2 Beosztás Decomandat Komfort 1 Emelet 4/4 ...épített Tégla Az apartman leírása Olyan befektetési ingatlant keres, amely biztos és állandó bevételi forrást generál? A GF+4 magasságú, vasbeton szerkezetű téglából épült, kaputelefonnal felszerelt, déli és nyugati fekvésű lakás 4. emeletén található, ez a lakás lehet, hogy pont az lesz, amit keres! A környék ebből a szempontból nagyon jó, a lakás közel van az Unirii térhez és a Központi Áruházhoz. Az 50 négyzetméter a következőképpen oszlik meg: - 1 konyha - 1 fürdőszoba - 2 szoba és 2 erkély. A felületek újak, és kiemelik: - parketta - kerámia burkolatok - dupla üvegezésű ablakok - falak mosható festékkel - fém ajtó a bejáratnál - cellás ajtók belül. A hőkomfortról saját központi fűtés és radiátor beépítés gondoskodik. További részletekért vagy a megtekintés időpontjának egyeztetéséért forduljon hozzánk, a Welt Imobiliare Teamhez Ingatlan azonosítója - P46520 Közművek, Belső kialakítás Általános közművek: Villanyáram, Víz, Gáz, CsatornázásFűtésrendszer Hőközpont, RadiátorokBelső kialakítás Parketta, Járólap, Csempe, Lemosható falFelszereltség Gázóra Megtekintések száma: 895 Frissítve: 2025-05-02 09:04:07