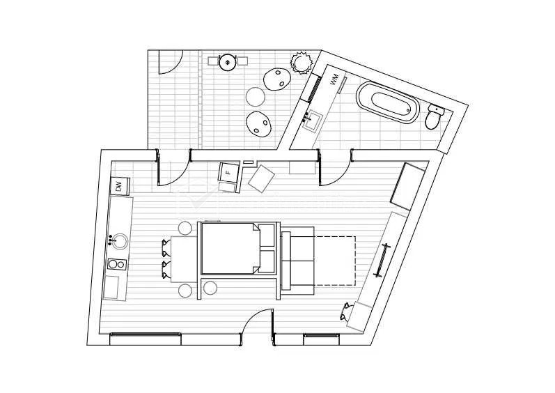
Lakás 1 szobák eladó on Cluj-napoca, Zóna Gara Cluj-Napoca, Gara 1 szoba • 44 m2 • 1 fürdőszoba • emelet földszintfinisat • mobilat complet eladási ár 110 000 € 108 000 € + 7 + 4 Eladott Jellemzők Ingatlan típusa Lakás Szobák száma 1 Konyhák száma 1 Fürdők száma 1 Parkoló nem Beépített terület 52 m2 Hasznos terület 44 m2 Komfort 1 Emelet földszint ...épített Tégla Az apartman leírása A Welt Imobiliare eladásra kínál egy garzonlakást a Feroviarilor Park területén, egy teljes bővítés alatt álló területen, 5 percre a Mihai Viteazu tértől. Házban található, a földszinten, bejárata az utcáról és az udvarról is van. Az apartmanban egy nappali egyterű konyhával, nagy és világos ablakokkal, egy fénytől árnyékolt hálórész, valamint egy kádas fürdőszoba található. A ház közös udvarától külön egy kis udvar is található grillezővel. A lakás fűtése gáztűzhellyel, időzítővel felszerelt. Ez a hely többféle felhasználásra is tökéletes, akár otthonnak is használható, de akár üzlethelyiségnek is átalakítható, közvetlen utcáról bejárattal. A lakás teljesen bútorozott, tartozékokkal, gépekkel, hűtővel, villanytűzhellyel, mosógéppel, mosogatógéppel és TV-vel. Az ingatlan jelenleg bérelt, így a bérleti szerződés átvételével megvásárolható, jövőbeli befektetést jelent. A víz beszivárgása miatt némi javításra szorulhat (2000-3000E), de ennek ellenére óriási lehetőségek rejlenek benne, a világos szobáktól a festői udvarig, itt megtalálja a tökéletes környezetet a meleg és barátságos légkör megteremtéséhez. Ne hagyja ki a lehetőséget, hogy birtokba vegye ezt a hatalmas potenciállal rendelkező ingatlant. Egy kis odafigyeléssel és látásmóddal ez tökéletes térré válhat. Ne habozzon kapcsolatba lépni velünk! Ingatlan azonosítója - P38160 Közművek, Belső kialakítás Általános közművek: Villanyáram, Víz, Gáz, CsatornázásFűtésrendszer CsempekályhákBelső kialakítás Parketta, Járólap, Csempe, Lemosható fal Megtekintések száma: 1438 Frissítve: 2025-03-19 14:09:55
+ 7 + 4 Eladott Jellemzők Ingatlan típusa Lakás Szobák száma 1 Konyhák száma 1 Fürdők száma 1 Parkoló nem Beépített terület 52 m2 Hasznos terület 44 m2 Komfort 1 Emelet földszint ...épített Tégla Az apartman leírása A Welt Imobiliare eladásra kínál egy garzonlakást a Feroviarilor Park területén, egy teljes bővítés alatt álló területen, 5 percre a Mihai Viteazu tértől. Házban található, a földszinten, bejárata az utcáról és az udvarról is van. Az apartmanban egy nappali egyterű konyhával, nagy és világos ablakokkal, egy fénytől árnyékolt hálórész, valamint egy kádas fürdőszoba található. A ház közös udvarától külön egy kis udvar is található grillezővel. A lakás fűtése gáztűzhellyel, időzítővel felszerelt. Ez a hely többféle felhasználásra is tökéletes, akár otthonnak is használható, de akár üzlethelyiségnek is átalakítható, közvetlen utcáról bejárattal. A lakás teljesen bútorozott, tartozékokkal, gépekkel, hűtővel, villanytűzhellyel, mosógéppel, mosogatógéppel és TV-vel. Az ingatlan jelenleg bérelt, így a bérleti szerződés átvételével megvásárolható, jövőbeli befektetést jelent. A víz beszivárgása miatt némi javításra szorulhat (2000-3000E), de ennek ellenére óriási lehetőségek rejlenek benne, a világos szobáktól a festői udvarig, itt megtalálja a tökéletes környezetet a meleg és barátságos légkör megteremtéséhez. Ne hagyja ki a lehetőséget, hogy birtokba vegye ezt a hatalmas potenciállal rendelkező ingatlant. Egy kis odafigyeléssel és látásmóddal ez tökéletes térré válhat. Ne habozzon kapcsolatba lépni velünk! Ingatlan azonosítója - P38160 Közművek, Belső kialakítás Általános közművek: Villanyáram, Víz, Gáz, CsatornázásFűtésrendszer CsempekályhákBelső kialakítás Parketta, Járólap, Csempe, Lemosható fal Megtekintések száma: 1438 Frissítve: 2025-03-19 14:09:55
Jellemzők Ingatlan típusa Lakás Szobák száma 1 Konyhák száma 1 Fürdők száma 1 Parkoló nem Beépített terület 52 m2 Hasznos terület 44 m2 Komfort 1 Emelet földszint ...épített Tégla Az apartman leírása A Welt Imobiliare eladásra kínál egy garzonlakást a Feroviarilor Park területén, egy teljes bővítés alatt álló területen, 5 percre a Mihai Viteazu tértől. Házban található, a földszinten, bejárata az utcáról és az udvarról is van. Az apartmanban egy nappali egyterű konyhával, nagy és világos ablakokkal, egy fénytől árnyékolt hálórész, valamint egy kádas fürdőszoba található. A ház közös udvarától külön egy kis udvar is található grillezővel. A lakás fűtése gáztűzhellyel, időzítővel felszerelt. Ez a hely többféle felhasználásra is tökéletes, akár otthonnak is használható, de akár üzlethelyiségnek is átalakítható, közvetlen utcáról bejárattal. A lakás teljesen bútorozott, tartozékokkal, gépekkel, hűtővel, villanytűzhellyel, mosógéppel, mosogatógéppel és TV-vel. Az ingatlan jelenleg bérelt, így a bérleti szerződés átvételével megvásárolható, jövőbeli befektetést jelent. A víz beszivárgása miatt némi javításra szorulhat (2000-3000E), de ennek ellenére óriási lehetőségek rejlenek benne, a világos szobáktól a festői udvarig, itt megtalálja a tökéletes környezetet a meleg és barátságos légkör megteremtéséhez. Ne hagyja ki a lehetőséget, hogy birtokba vegye ezt a hatalmas potenciállal rendelkező ingatlant. Egy kis odafigyeléssel és látásmóddal ez tökéletes térré válhat. Ne habozzon kapcsolatba lépni velünk! Ingatlan azonosítója - P38160 Közművek, Belső kialakítás Általános közművek: Villanyáram, Víz, Gáz, CsatornázásFűtésrendszer CsempekályhákBelső kialakítás Parketta, Járólap, Csempe, Lemosható fal Megtekintések száma: 1438 Frissítve: 2025-03-19 14:09:55