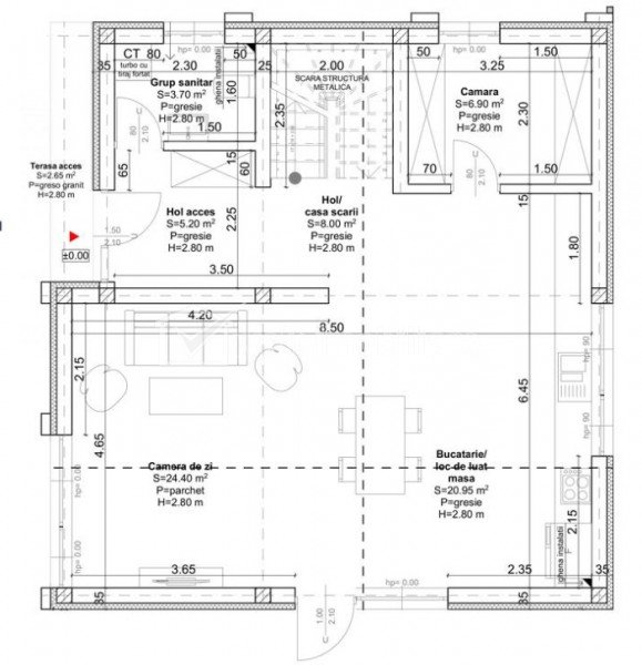
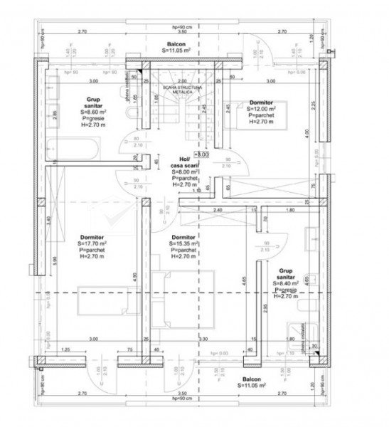
Maison 5 chambres à vendre dans Gilau Gilau 5 chambres • 140 m2 • 350 m2 terrain prix de vente 84 900 € + 5 Vendu Caractéristiques Type de bien Maison Non. Chambres 5 Non. cuisines 1 Non. salles de bains 3 Non. balcons 3 Le stationnement non Sous-sol non Jardin non Surface utile 140 m2 Surface construite 177 m2 Surface terrain 350 m2 Etage 1 Struct. résistance Brique Construction 2018
+ 5 Vendu Caractéristiques Type de bien Maison Non. Chambres 5 Non. cuisines 1 Non. salles de bains 3 Non. balcons 3 Le stationnement non Sous-sol non Jardin non Surface utile 140 m2 Surface construite 177 m2 Surface terrain 350 m2 Etage 1 Struct. résistance Brique Construction 2018
Caractéristiques Type de bien Maison Non. Chambres 5 Non. cuisines 1 Non. salles de bains 3 Non. balcons 3 Le stationnement non Sous-sol non Jardin non Surface utile 140 m2 Surface construite 177 m2 Surface terrain 350 m2 Etage 1 Struct. résistance Brique Construction 2018