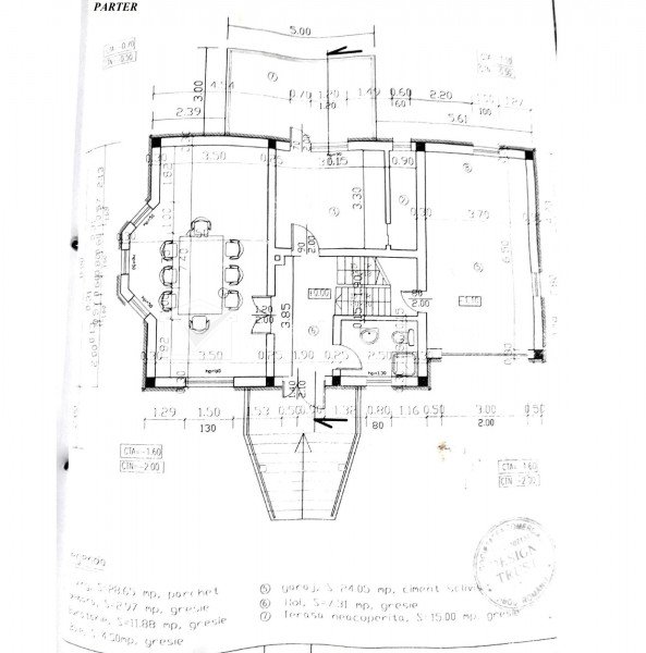
Maison 4 chambres à vendre dans Dezmir, zone Centru Dezmir, Centru 4 chambres • 132 m2 • 540 m2 terrainnemobilat prix de vente négociable 158 000 € 0% de commission à l'achat • + 8 + 5 Vendu Exclusivité Caractéristiques Type de bien Maison Non. Chambres 4 Non. cuisines 1 Non. salles de bains 2 Non. de garages 1 Le stationnement oui Sous-sol oui Jardin non Surface utile 132 m2 Surface construite 175 m2 Surface terrain 540 m2 No. fronts 20 m Struct. résistance Brique Construction 2020
+ 8 + 5 Vendu Exclusivité Caractéristiques Type de bien Maison Non. Chambres 4 Non. cuisines 1 Non. salles de bains 2 Non. de garages 1 Le stationnement oui Sous-sol oui Jardin non Surface utile 132 m2 Surface construite 175 m2 Surface terrain 540 m2 No. fronts 20 m Struct. résistance Brique Construction 2020
Caractéristiques Type de bien Maison Non. Chambres 4 Non. cuisines 1 Non. salles de bains 2 Non. de garages 1 Le stationnement oui Sous-sol oui Jardin non Surface utile 132 m2 Surface construite 175 m2 Surface terrain 540 m2 No. fronts 20 m Struct. résistance Brique Construction 2020