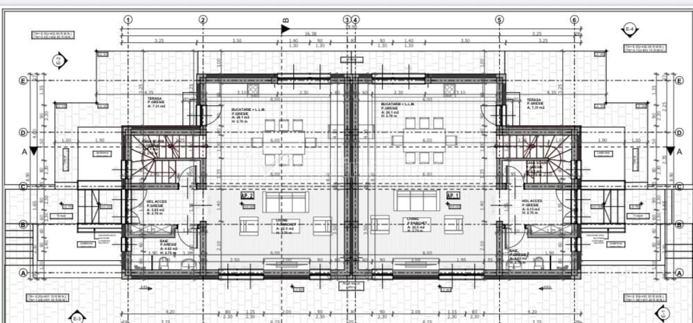
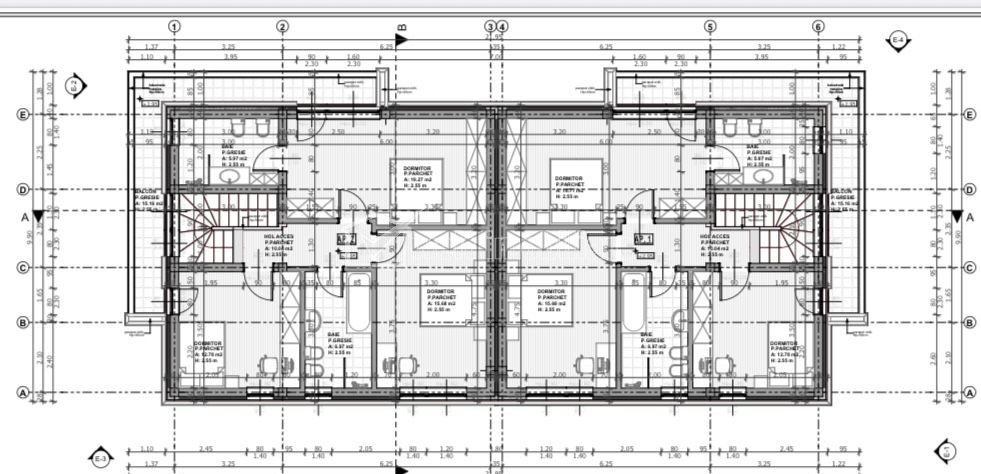
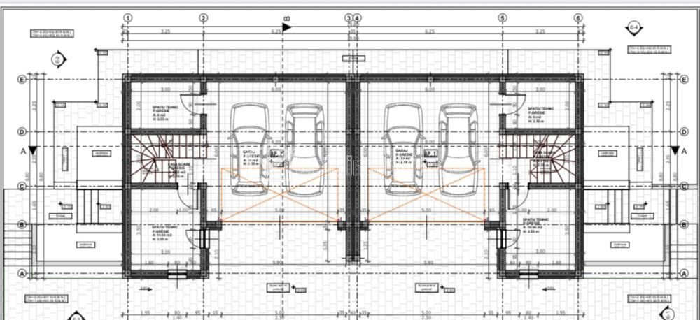
Maison 3 chambres à vendre dans Cluj-napoca, zone Gara Cluj-Napoca, Gara 3 chambres • 19500 m2 prix de vente 319 000 € 0% de commission à l'achat • + 7 + 4 Vendu Caractéristiques Type de bien Maison Non. Chambres 3 Le stationnement non Sous-sol non Jardin non Surface utile 19500 m2
+ 7 + 4 Vendu Caractéristiques Type de bien Maison Non. Chambres 3 Le stationnement non Sous-sol non Jardin non Surface utile 19500 m2
Caractéristiques Type de bien Maison Non. Chambres 3 Le stationnement non Sous-sol non Jardin non Surface utile 19500 m2