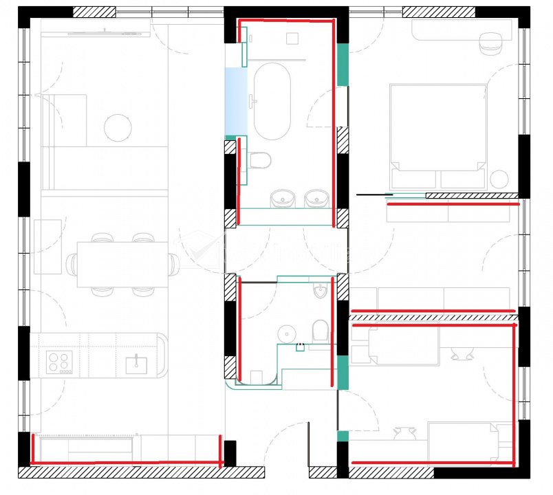
Appartement 4 chambres à vendre dans Cluj-napoca, zone Europa Cluj-Napoca, Europa 4 chambres • 100 m2 • 2 salles de bains • étage 2/2nemobilat prix de vente 365 000 € + 8 + 5 Caractéristiques Type de bien Appartement Non. Chambres 4 Non. cuisines 1 Non. salles de bains 2 Le stationnement non Surface utile 100 m2 Etage 2/2 Construit avec Brique Construction 2024 Description de l'appartement Appartement de luxe de 4 pièces, avec terrasse de 70 m² et jardin de 200 m², dans une villa haut de gamme – Cluj-Napoca Nous vous présentons un appartement spectaculaire, situé dans une villa haut de gamme, dans un quartier calme et exclusif de Cluj-Napoca, avec un panorama exceptionnel sur la ville. Caractéristiques principales : Superficie généreuse, cloisonnement intelligent en 4 pièces spacieuses Terrasse privée de 70 m² – idéale pour la détente, les repas en plein air ou un espace détente Jardin privé de 200 m² – espace vert intime et idéal pour les familles Finitions haut de gamme : façade ventilée avec céramique, laine de basalte, murs en briques apparentes, béton imprimé et éléments en bois CLT Prestations haut de gamme : Chauffage et climatisation par le sol pour un confort optimal toute l'année Chauffage central privé Sauna, jacuzzi et accès à la piscine privés Espace cinéma – idéal pour des soirées relaxantes Terrasse commune de 300 m² – espace convivial généreux avec vue panoramique Situation et avantages : Situé dans un quartier calme, avec accès rapide aux points d'intérêt de la ville Panorama spectaculaire sur Cluj – un cadre unique à savourer au quotidien Projet exclusif, avec un nombre limité d'appartements, idéal pour Pour ceux qui recherchent intimité et confort optimal. Cette propriété est destinée aux personnes appréciant la qualité, les grands espaces et les prestations haut de gamme, dans un cadre naturel et paisible. Visite possible – contactez-nous pour plus d'informations ou pour prendre rendez-vous ! ID de la propriété - P48184 Utilités, Finissages Système chauffage Chauffage, Chauffage par le plancherEquipements Compteurs gaz Nombre de vues: 1539 Réactualiser: 2026-04-03 14:27:50
+ 8 + 5 Caractéristiques Type de bien Appartement Non. Chambres 4 Non. cuisines 1 Non. salles de bains 2 Le stationnement non Surface utile 100 m2 Etage 2/2 Construit avec Brique Construction 2024 Description de l'appartement Appartement de luxe de 4 pièces, avec terrasse de 70 m² et jardin de 200 m², dans une villa haut de gamme – Cluj-Napoca Nous vous présentons un appartement spectaculaire, situé dans une villa haut de gamme, dans un quartier calme et exclusif de Cluj-Napoca, avec un panorama exceptionnel sur la ville. Caractéristiques principales : Superficie généreuse, cloisonnement intelligent en 4 pièces spacieuses Terrasse privée de 70 m² – idéale pour la détente, les repas en plein air ou un espace détente Jardin privé de 200 m² – espace vert intime et idéal pour les familles Finitions haut de gamme : façade ventilée avec céramique, laine de basalte, murs en briques apparentes, béton imprimé et éléments en bois CLT Prestations haut de gamme : Chauffage et climatisation par le sol pour un confort optimal toute l'année Chauffage central privé Sauna, jacuzzi et accès à la piscine privés Espace cinéma – idéal pour des soirées relaxantes Terrasse commune de 300 m² – espace convivial généreux avec vue panoramique Situation et avantages : Situé dans un quartier calme, avec accès rapide aux points d'intérêt de la ville Panorama spectaculaire sur Cluj – un cadre unique à savourer au quotidien Projet exclusif, avec un nombre limité d'appartements, idéal pour Pour ceux qui recherchent intimité et confort optimal. Cette propriété est destinée aux personnes appréciant la qualité, les grands espaces et les prestations haut de gamme, dans un cadre naturel et paisible. Visite possible – contactez-nous pour plus d'informations ou pour prendre rendez-vous ! ID de la propriété - P48184 Utilités, Finissages Système chauffage Chauffage, Chauffage par le plancherEquipements Compteurs gaz Nombre de vues: 1539 Réactualiser: 2026-04-03 14:27:50
Caractéristiques Type de bien Appartement Non. Chambres 4 Non. cuisines 1 Non. salles de bains 2 Le stationnement non Surface utile 100 m2 Etage 2/2 Construit avec Brique Construction 2024 Description de l'appartement Appartement de luxe de 4 pièces, avec terrasse de 70 m² et jardin de 200 m², dans une villa haut de gamme – Cluj-Napoca Nous vous présentons un appartement spectaculaire, situé dans une villa haut de gamme, dans un quartier calme et exclusif de Cluj-Napoca, avec un panorama exceptionnel sur la ville. Caractéristiques principales : Superficie généreuse, cloisonnement intelligent en 4 pièces spacieuses Terrasse privée de 70 m² – idéale pour la détente, les repas en plein air ou un espace détente Jardin privé de 200 m² – espace vert intime et idéal pour les familles Finitions haut de gamme : façade ventilée avec céramique, laine de basalte, murs en briques apparentes, béton imprimé et éléments en bois CLT Prestations haut de gamme : Chauffage et climatisation par le sol pour un confort optimal toute l'année Chauffage central privé Sauna, jacuzzi et accès à la piscine privés Espace cinéma – idéal pour des soirées relaxantes Terrasse commune de 300 m² – espace convivial généreux avec vue panoramique Situation et avantages : Situé dans un quartier calme, avec accès rapide aux points d'intérêt de la ville Panorama spectaculaire sur Cluj – un cadre unique à savourer au quotidien Projet exclusif, avec un nombre limité d'appartements, idéal pour Pour ceux qui recherchent intimité et confort optimal. Cette propriété est destinée aux personnes appréciant la qualité, les grands espaces et les prestations haut de gamme, dans un cadre naturel et paisible. Visite possible – contactez-nous pour plus d'informations ou pour prendre rendez-vous ! ID de la propriété - P48184 Utilités, Finissages Système chauffage Chauffage, Chauffage par le plancherEquipements Compteurs gaz Nombre de vues: 1539 Réactualiser: 2026-04-03 14:27:50