Appartement 4 chambres à vendre dans Apahida Apahida 4 chambres • 11500 m2 • étage prix de vente 175 450 € 0% de commission à l'achat • + 1 Commission 0% Caractéristiques Type de bien Appartement Non. Chambres 4 Le stationnement non Surface utile 11500 m2 Etage Description de l'appartement Je vends un appartement neuf, de type loft, situé dans un petit immeuble de seulement 5 appartements, en plein centre-ville, près de Penny, face au marché, au 2A1 rue Pietroasa. Deux places de parking sont incluses dans le prix. Surface habitable : 115 m², surface construite : 138 m², 2 salles de bains, balcon. Vendu semi-fini. ID de la propriété - P53261 Nombre de vues: 436 Réactualiser: 2026-05-13 16:22:21
+ 1 Commission 0% Caractéristiques Type de bien Appartement Non. Chambres 4 Le stationnement non Surface utile 11500 m2 Etage Description de l'appartement Je vends un appartement neuf, de type loft, situé dans un petit immeuble de seulement 5 appartements, en plein centre-ville, près de Penny, face au marché, au 2A1 rue Pietroasa. Deux places de parking sont incluses dans le prix. Surface habitable : 115 m², surface construite : 138 m², 2 salles de bains, balcon. Vendu semi-fini. ID de la propriété - P53261 Nombre de vues: 436 Réactualiser: 2026-05-13 16:22:21
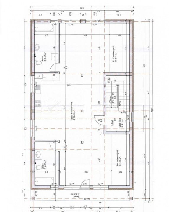
Caractéristiques Type de bien Appartement Non. Chambres 4 Le stationnement non Surface utile 11500 m2 Etage Description de l'appartement Je vends un appartement neuf, de type loft, situé dans un petit immeuble de seulement 5 appartements, en plein centre-ville, près de Penny, face au marché, au 2A1 rue Pietroasa. Deux places de parking sont incluses dans le prix. Surface habitable : 115 m², surface construite : 138 m², 2 salles de bains, balcon. Vendu semi-fini. ID de la propriété - P53261 Nombre de vues: 436 Réactualiser: 2026-05-13 16:22:21