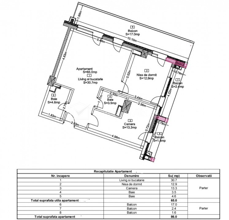
Appartement 3 chambres à vendre dans Cluj-napoca, zone Zorilor Cluj-Napoca, Zorilor 3 chambres • 65 m2 • 2 salles de bains • étage rez-de-chaussée/14 • semidecomandatnemobilat prix de vente négociable 187 000 € 0% de commission à l'achat • + 3 Commission 0% Caractéristiques Type de bien Appartement Non. Chambres 3 Non. cuisines 1 Non. salles de bains 2 Non. balcons 2 Nombre de terrasses 1 Le stationnement non Surface construite 125 m2 Surface utile 65 m2 Compartiments Semidecomandat Confort 1 Etage rez-de-chaussée/14 Construit avec Ciment Construction 2025 Description de l'appartement Nous proposons à la vente un appartement moderne situé dans la résidence Wings, quartier Zorilor, à Cluj-Napoca. Appartement de 3 pièces de 65 m² habitables, comprenant une chambre spacieuse et une pièce plus petite pouvant servir de bureau ; deux salles de bains, un séjour avec cuisine ouverte donnant sur la terrasse. Terrasse de 17 m² exposée est et deux balcons, un pour chaque chambre. Semi-fini. Chauffage central au gaz, chauffage au sol, fenêtres à double vitrage, installations en place. Inscrit au cadastre – disponible immédiatement, possibilité d’obtenir un prêt immobilier. Possibilité d’acquérir une place de parking : 13 000 €. ID de la propriété - P53440 Utilités, Finissages Utilités générales: Électricité, Eau, Evacuation des eaux usées, TV CâbleSystème chauffage Chauffage dans l’immeuble, Chauffage par le plancher Nombre de vues: 658 Réactualiser: 2026-05-19 16:36:16
Cluj-Napoca, Zorilor 3 chambres • 65 m2 • 2 salles de bains • étage rez-de-chaussée/14 • semidecomandatnemobilat
+ 3 Commission 0% Caractéristiques Type de bien Appartement Non. Chambres 3 Non. cuisines 1 Non. salles de bains 2 Non. balcons 2 Nombre de terrasses 1 Le stationnement non Surface construite 125 m2 Surface utile 65 m2 Compartiments Semidecomandat Confort 1 Etage rez-de-chaussée/14 Construit avec Ciment Construction 2025 Description de l'appartement Nous proposons à la vente un appartement moderne situé dans la résidence Wings, quartier Zorilor, à Cluj-Napoca. Appartement de 3 pièces de 65 m² habitables, comprenant une chambre spacieuse et une pièce plus petite pouvant servir de bureau ; deux salles de bains, un séjour avec cuisine ouverte donnant sur la terrasse. Terrasse de 17 m² exposée est et deux balcons, un pour chaque chambre. Semi-fini. Chauffage central au gaz, chauffage au sol, fenêtres à double vitrage, installations en place. Inscrit au cadastre – disponible immédiatement, possibilité d’obtenir un prêt immobilier. Possibilité d’acquérir une place de parking : 13 000 €. ID de la propriété - P53440 Utilités, Finissages Utilités générales: Électricité, Eau, Evacuation des eaux usées, TV CâbleSystème chauffage Chauffage dans l’immeuble, Chauffage par le plancher Nombre de vues: 658 Réactualiser: 2026-05-19 16:36:16
Caractéristiques Type de bien Appartement Non. Chambres 3 Non. cuisines 1 Non. salles de bains 2 Non. balcons 2 Nombre de terrasses 1 Le stationnement non Surface construite 125 m2 Surface utile 65 m2 Compartiments Semidecomandat Confort 1 Etage rez-de-chaussée/14 Construit avec Ciment Construction 2025 Description de l'appartement Nous proposons à la vente un appartement moderne situé dans la résidence Wings, quartier Zorilor, à Cluj-Napoca. Appartement de 3 pièces de 65 m² habitables, comprenant une chambre spacieuse et une pièce plus petite pouvant servir de bureau ; deux salles de bains, un séjour avec cuisine ouverte donnant sur la terrasse. Terrasse de 17 m² exposée est et deux balcons, un pour chaque chambre. Semi-fini. Chauffage central au gaz, chauffage au sol, fenêtres à double vitrage, installations en place. Inscrit au cadastre – disponible immédiatement, possibilité d’obtenir un prêt immobilier. Possibilité d’acquérir une place de parking : 13 000 €. ID de la propriété - P53440 Utilités, Finissages Utilités générales: Électricité, Eau, Evacuation des eaux usées, TV CâbleSystème chauffage Chauffage dans l’immeuble, Chauffage par le plancher Nombre de vues: 658 Réactualiser: 2026-05-19 16:36:16