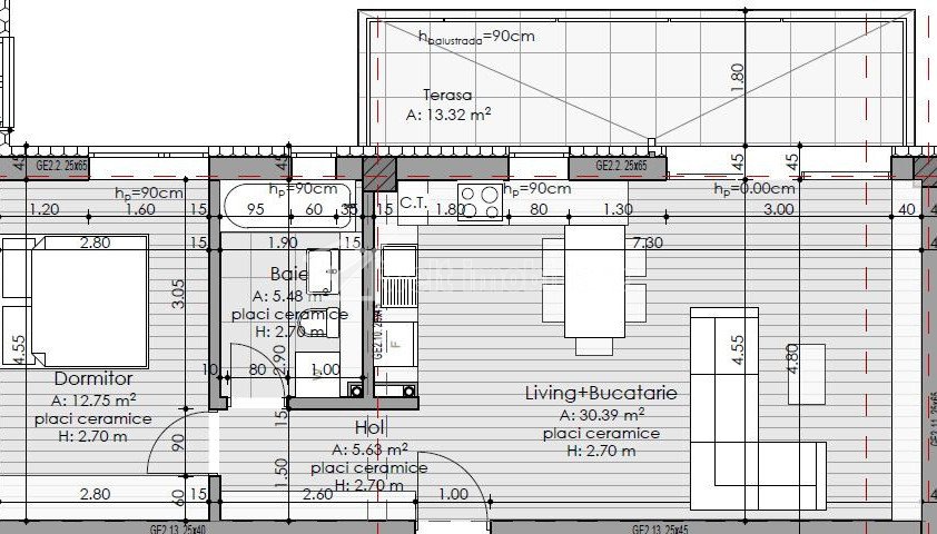
Appartement 2 chambres à vendre dans Cluj-napoca, zone Borhanci Cluj-Napoca, Borhanci 2 chambres • 55 m2 • 1 salle de bain • étage 1/3 • decomandatfinisat prix de vente négociable 183 900 € 179 000 € + 10 + 7 Vendu Caractéristiques Type de bien Appartement Non. Chambres 2 Non. cuisines 1 Non. salles de bains 1 Nombre de terrasses 1 Le stationnement oui Surface construite 72 m2 Surface utile 55 m2 Compartiments Decomandat Confort Marit Etage 1/3 Construit avec Brique Description de l'appartement Exclusivité! Nous avons le plaisir de vous proposer à la vente un appartement de 2 pièces, situé dans le complexe résidentiel Gardenia Résidence, au 1er étage d'un immeuble de 3 étages avec ascenseur. Il a été fini avec une grande attention aux détails, en utilisant uniquement des matériaux de la meilleure qualité. Il est équipé de hauts standards, disposant de tout le nécessaire pour vivre dans les meilleures conditions. Composition : séjour+cuisine, hall, salle de bains vitrée, chambre, terrasse. Superficie totale 69 m², utile 55 m². Le stationnement souterrain est inclus dans le prix proposé ! Il peut être récupéré auprès d'un locataire. Les spécifications techniques du bâtiment : - Maçonnerie en brique Porotherm avec thermosystème en laine de basalte (pas de polystyrène) - Murs extérieurs recouverts de brique apparente - Terrasses et espaces communs finis avec des matériaux de la meilleure qualité - Fenêtres à double vitrage avec 3 carreaux et 6 pièces - Ascenseurs silencieux , avec cabine et portes en acier inoxydable. L'orientation est est, donnant sur l'espace vert et étant protégé du bruit de la circulation routière. Elle est visible à tout moment, sur rendez-vous préalable. ID de la propriété - P45891 Utilités, Finissages Utilités générales: Électricité, Eau, Gaz, Evacuation des eaux uséesSystème chauffage ChauffageFinissages Parquet, Grès, Faïence, LavableEquipements Compteurs gaz Nombre de vues: 607 Réactualiser: 2025-02-14 11:21:45
+ 10 + 7 Vendu Caractéristiques Type de bien Appartement Non. Chambres 2 Non. cuisines 1 Non. salles de bains 1 Nombre de terrasses 1 Le stationnement oui Surface construite 72 m2 Surface utile 55 m2 Compartiments Decomandat Confort Marit Etage 1/3 Construit avec Brique Description de l'appartement Exclusivité! Nous avons le plaisir de vous proposer à la vente un appartement de 2 pièces, situé dans le complexe résidentiel Gardenia Résidence, au 1er étage d'un immeuble de 3 étages avec ascenseur. Il a été fini avec une grande attention aux détails, en utilisant uniquement des matériaux de la meilleure qualité. Il est équipé de hauts standards, disposant de tout le nécessaire pour vivre dans les meilleures conditions. Composition : séjour+cuisine, hall, salle de bains vitrée, chambre, terrasse. Superficie totale 69 m², utile 55 m². Le stationnement souterrain est inclus dans le prix proposé ! Il peut être récupéré auprès d'un locataire. Les spécifications techniques du bâtiment : - Maçonnerie en brique Porotherm avec thermosystème en laine de basalte (pas de polystyrène) - Murs extérieurs recouverts de brique apparente - Terrasses et espaces communs finis avec des matériaux de la meilleure qualité - Fenêtres à double vitrage avec 3 carreaux et 6 pièces - Ascenseurs silencieux , avec cabine et portes en acier inoxydable. L'orientation est est, donnant sur l'espace vert et étant protégé du bruit de la circulation routière. Elle est visible à tout moment, sur rendez-vous préalable. ID de la propriété - P45891 Utilités, Finissages Utilités générales: Électricité, Eau, Gaz, Evacuation des eaux uséesSystème chauffage ChauffageFinissages Parquet, Grès, Faïence, LavableEquipements Compteurs gaz Nombre de vues: 607 Réactualiser: 2025-02-14 11:21:45
Caractéristiques Type de bien Appartement Non. Chambres 2 Non. cuisines 1 Non. salles de bains 1 Nombre de terrasses 1 Le stationnement oui Surface construite 72 m2 Surface utile 55 m2 Compartiments Decomandat Confort Marit Etage 1/3 Construit avec Brique Description de l'appartement Exclusivité! Nous avons le plaisir de vous proposer à la vente un appartement de 2 pièces, situé dans le complexe résidentiel Gardenia Résidence, au 1er étage d'un immeuble de 3 étages avec ascenseur. Il a été fini avec une grande attention aux détails, en utilisant uniquement des matériaux de la meilleure qualité. Il est équipé de hauts standards, disposant de tout le nécessaire pour vivre dans les meilleures conditions. Composition : séjour+cuisine, hall, salle de bains vitrée, chambre, terrasse. Superficie totale 69 m², utile 55 m². Le stationnement souterrain est inclus dans le prix proposé ! Il peut être récupéré auprès d'un locataire. Les spécifications techniques du bâtiment : - Maçonnerie en brique Porotherm avec thermosystème en laine de basalte (pas de polystyrène) - Murs extérieurs recouverts de brique apparente - Terrasses et espaces communs finis avec des matériaux de la meilleure qualité - Fenêtres à double vitrage avec 3 carreaux et 6 pièces - Ascenseurs silencieux , avec cabine et portes en acier inoxydable. L'orientation est est, donnant sur l'espace vert et étant protégé du bruit de la circulation routière. Elle est visible à tout moment, sur rendez-vous préalable. ID de la propriété - P45891 Utilités, Finissages Utilités générales: Électricité, Eau, Gaz, Evacuation des eaux uséesSystème chauffage ChauffageFinissages Parquet, Grès, Faïence, LavableEquipements Compteurs gaz Nombre de vues: 607 Réactualiser: 2025-02-14 11:21:45