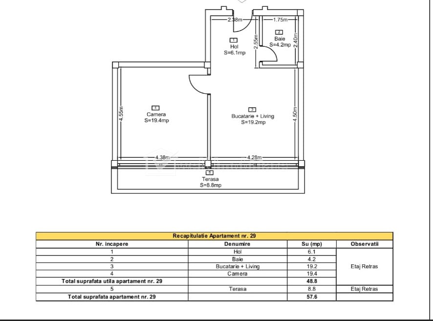
Apartament 2 camere, finisat, terasa, zona Petrom , Baciu Baciu 2 camere • 58 m2 • 1 baie • etaj 3/2 • semidecomandatfinisat • nemobilat pret vanzare 133.400 € Caracteristici Tip locuinta Apartament Tip imobil bloc de apartamente Numar camere 2 Numar bucatarii 1 Numar bai 1 Numar terase 1 Numar garaje 1 Parcare nu Suprafata utila 58 m2 Compartimentare Semidecomandat Etaj 3/2 Construit cu Caramida An constructie 2024 Disponibilitate imediat Descrierea Apartamentului Va propunem spre vanzare un apartament de 2 camere cu suprafata utila de 58 mp in zona Petrom, Baciu. Apartamentul este situat la etajul retras al unui imobil cu regim de inaltime S+P+2+Er. Compartimentarea este semidecomandata si se prezinta astfel: hol intrare, living cu bucătărie de tip open-space, 1 dormitor, 1 baie si o terasa de 8mp . Apartamentul se vinde gata finisat dispune de incalzire in pardoseala si geamuri cu trei sticle. Imobilul este construit in 2024 ,este dotat cu lift si este situat intr-o zona cu acces facil la puncte de interes precum statie de autobuz, magazine, sala de fitness. De asemenea exista și 1 loc de parcare subteran care se poate achizitiona la pretul de 7500 euro. Pentru mai multe detalii sau pentru stabilirea unei vizionari nu ezitati sa ne contactati. ID Proprietate - P54767 Utilitati, Finisaje Utilitati generale: Electricitate, Apa, Gaz, CanalizareSistem de incalzire Incalzire in pardoseala Finisaje: Ferestre cu geam termopan (PVC, Aluminiu), Usa intrare (Metal) Dotari: Alte spatii utile (Terasa), Mobilat (Nemobilat), Dotari imobil (Interfon, Lift) Vecinatati si puncte de interes in zona Amenajare strazi (Asfaltate) Numar vizualizari: 197 Actualizat: 2026-05-07 16:37:42
Caracteristici Tip locuinta Apartament Tip imobil bloc de apartamente Numar camere 2 Numar bucatarii 1 Numar bai 1 Numar terase 1 Numar garaje 1 Parcare nu Suprafata utila 58 m2 Compartimentare Semidecomandat Etaj 3/2 Construit cu Caramida An constructie 2024 Disponibilitate imediat Descrierea Apartamentului Va propunem spre vanzare un apartament de 2 camere cu suprafata utila de 58 mp in zona Petrom, Baciu. Apartamentul este situat la etajul retras al unui imobil cu regim de inaltime S+P+2+Er. Compartimentarea este semidecomandata si se prezinta astfel: hol intrare, living cu bucătărie de tip open-space, 1 dormitor, 1 baie si o terasa de 8mp . Apartamentul se vinde gata finisat dispune de incalzire in pardoseala si geamuri cu trei sticle. Imobilul este construit in 2024 ,este dotat cu lift si este situat intr-o zona cu acces facil la puncte de interes precum statie de autobuz, magazine, sala de fitness. De asemenea exista și 1 loc de parcare subteran care se poate achizitiona la pretul de 7500 euro. Pentru mai multe detalii sau pentru stabilirea unei vizionari nu ezitati sa ne contactati. ID Proprietate - P54767 Utilitati, Finisaje Utilitati generale: Electricitate, Apa, Gaz, CanalizareSistem de incalzire Incalzire in pardoseala Finisaje: Ferestre cu geam termopan (PVC, Aluminiu), Usa intrare (Metal) Dotari: Alte spatii utile (Terasa), Mobilat (Nemobilat), Dotari imobil (Interfon, Lift) Vecinatati si puncte de interes in zona Amenajare strazi (Asfaltate) Numar vizualizari: 197 Actualizat: 2026-05-07 16:37:42
Caracteristici Tip locuinta Apartament Tip imobil bloc de apartamente Numar camere 2 Numar bucatarii 1 Numar bai 1 Numar terase 1 Numar garaje 1 Parcare nu Suprafata utila 58 m2 Compartimentare Semidecomandat Etaj 3/2 Construit cu Caramida An constructie 2024 Disponibilitate imediat Descrierea Apartamentului Va propunem spre vanzare un apartament de 2 camere cu suprafata utila de 58 mp in zona Petrom, Baciu. Apartamentul este situat la etajul retras al unui imobil cu regim de inaltime S+P+2+Er. Compartimentarea este semidecomandata si se prezinta astfel: hol intrare, living cu bucătărie de tip open-space, 1 dormitor, 1 baie si o terasa de 8mp . Apartamentul se vinde gata finisat dispune de incalzire in pardoseala si geamuri cu trei sticle. Imobilul este construit in 2024 ,este dotat cu lift si este situat intr-o zona cu acces facil la puncte de interes precum statie de autobuz, magazine, sala de fitness. De asemenea exista și 1 loc de parcare subteran care se poate achizitiona la pretul de 7500 euro. Pentru mai multe detalii sau pentru stabilirea unei vizionari nu ezitati sa ne contactati. ID Proprietate - P54767 Utilitati, Finisaje Utilitati generale: Electricitate, Apa, Gaz, CanalizareSistem de incalzire Incalzire in pardoseala Finisaje: Ferestre cu geam termopan (PVC, Aluminiu), Usa intrare (Metal) Dotari: Alte spatii utile (Terasa), Mobilat (Nemobilat), Dotari imobil (Interfon, Lift) Vecinatati si puncte de interes in zona Amenajare strazi (Asfaltate) Numar vizualizari: 197 Actualizat: 2026-05-07 16:37:42